Sehr repräsentatives Geschäftshaus am Fetscherplatz Dresden

Dresden 11375 4,700,00 m2
Details der Immobilie
  • ID-Nummer : 69275
  • Preis: 11,375.00 €
  • Ca. Wohnfläche: 4,700,00 m2
  • Zimmer (gesamt): -
  • Energiepass
  • Art: Bedarfsausweis
  • Endenergiebedarf in kWh/(m²*a):
  • Baujahr: 1993
  • Käuferprovision: 0

Adresse
  • Straße:
  • Hausnummer:
  • Postleitzahl: 01307
  • Stadt: Dresden

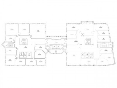
Objektbeschreibung

Die Immobilie wurde bisher langfristig durch eine Behörde genutzt. Die noch vakanten Mietbereiche sind ab ca. 350 m² teilbar. Insofern bietet sich die Immobilie für expandierene Unternehmen sowie für Großnutzer als Firmensitz an.Das Gebäude zeichnet sich durch ein überaus großzügiges, tageslichtdurchflutetes Eingangsatrium aus, welches sich über 5 Etagen erstreckt. Über vollverglaste Personenaufzüge oder ein bestens belichtetes Treppenhaus gelangen Mieter und Besucher in die einzelnen Büroetagen.


Ausstattung


Lage



Ähnliche Anzeigen
Studenten aufgepasst...2-Raum-Wohnung am Karl-Heine-Kanal...mit EBK...zu vermieten
ID-Nummer: 23831
Charmantes Einfamilienhaus mit ELW in idyllischer Lage
ID-Nummer: 72072
Charmantes Einfamilienhaus mit ELW in idyllischer Lage
 
Windeck-Rosbach
209,000.00 €
  • 12
    Zimmer (gesamt)
  • 330,00 m2
    Ca. Wohnfläche:

"Immobilienangebote: Immobilien gewerblich und privat kostenlos inserieren Für Immobilienmakler: Nutzen Sie unsere Open-Immo-Schnittstelle"