Eigentumswohnung in Zwickau als Anlageobjekt ca. 14% Rendite p.a.

Zwickau 11760 28,00 m2
Details der Immobilie
  • ID-Nummer : 29256
  • Preis: 11,760.00 €
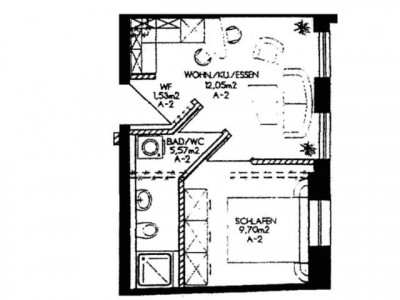
  • Ca. Wohnfläche: 28,00 m2
  • Zimmer (gesamt): 2
  • Energiepass
  • Art: Bedarfsausweis
  • Endenergiebedarf in kWh/(m²*a):
  • Baujahr: 0
  • Käuferprovision: 0

Adresse
  • Straße: Reichenbacher Strasse 92a
  • Hausnummer:
  • Postleitzahl: 08056
  • Stadt: Zwickau

Objektbeschreibung

Zum Verkauf steht eine Eigentumswohnung im 1.OG eines Eckhauses mit 2 Zimmern inkl. offener Kochnische und innenliegendem Bad (WC + Dusche+ Waschmaschinenplatz).Seit dem 01.11.2014 ist die Wohnung bezugsfrei und befindet sich derzeit in der Vermarktung als Mietobjekt. Vorher war die Wohnung durchweg vermietet (letzter Mieter war über 3 Jahre im Objekt). Die letzte Miete lag bei 140,00 € nettokalt im Monat + Betriebskostenvorauszahlung.Das monatliche Hausgeld beträgt 101,32 € davon sind 47,86 € nicht umlagefähig.Dies bedeutet eine Jahresnettokaltmiete von 1.680,00 € oder ein Reinertrag vor Steuern von jährlich 1.105,68 €.Bei einem Kaufpreis von 7fach x 1680,00 € = 11.760,00 € ergibt sich bei Neuvermietung somit eine Rendite von ca. 14% p.a.Sie werden beim Kauf Mitglied einer Wohnungseigentumsgemeinschaft mit einem Anteil von 56,315/1000,000. Die Verwaltung ist solide und kompetent und betreut das Objekt zur vollsten Zufriedenheit seit über 7 Jahren.Der Verkehrswert gemäß eines Verkehrswertgutachtens aus dem Jahre 2007 beträgt 20.000,00 €.


Ausstattung


Lage



Ähnliche Anzeigen
Jetzt! - noch sind die Zinsen gut!
ID-Nummer: 106445
Jetzt! - noch sind die Zinsen gut!
 
Hamm
182,608.00 €
  • 4
    Zimmer (gesamt)
  • 131,00 m2
    Ca. Wohnfläche:
HDIC  -  provisionsfrei  -  BUSINESS  IM  GRÜNEN
ID-Nummer: 40352
HDIC - provisionsfrei - BUSINESS IM GRÜNEN
 
Unterhaching
3,567.00 €
  • -
    Zimmer (gesamt)
  • 1,650,00 m2
    Ca. Wohnfläche:
3 Zimmer-Eigentumswohnung mit Balkon und Garage in Konradsreuth
ID-Nummer: 24547
3 Zimmer-Eigentumswohnung mit Balkon und Garage in Konradsreuth
 
Konradsreuth
70,000.00 €
  • 3
    Zimmer (gesamt)
  • 73,00 m2
    Ca. Wohnfläche:

"Immobilienangebote: Immobilien gewerblich und privat kostenlos inserieren Für Immobilienmakler: Nutzen Sie unsere Open-Immo-Schnittstelle"