Fröndenberg: Großes Einfamilienhaus mit Potential !

Fröndenberg 289000 265,00 m2
Details der Immobilie
  • ID-Nummer : 24889
  • Preis: 289,000.00 €
  • Ca. Wohnfläche: 265,00 m2
  • Zimmer (gesamt): 6
  • Energiepass
  • Art: Bedarfsausweis
  • Endenergiebedarf in kWh/(m²*a):
  • Baujahr: 1969
  • Käuferprovision: 0

Adresse
  • Straße:
  • Hausnummer:
  • Postleitzahl: 58730
  • Stadt: Fröndenberg

Objektbeschreibung

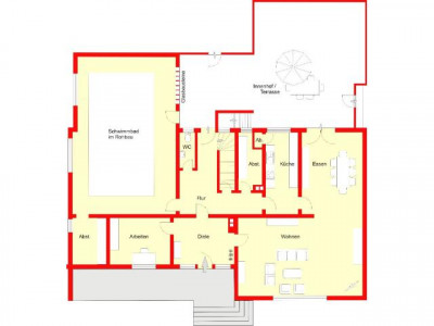
Das Wohnhaus verfügt über eine großzügige Grundrissgestaltung und wurde solide erstellt. Allein der Wohn-/ Essbereich ist knapp 70 m² groß und grenzt an einen nach Norden ausgerichteten Innenhof mit einer Größe von ca. 80 m². Von hier gelangt man auch zu der Doppelgarage nebst weiteren Stellflächen davor sowie dahinter... . Des Weiteren befindet sich im Erdgeschoss ein bis heute nicht fertig ausgebauter Schwimmtrakt von ca. 82 m² - durchaus auch als separate Einliegerwohnung ausbaubar. Das Dachgeschoß bietet insg. 3-4 große Schlafzimmer, 2 Bäder ... derzeit aufgeteilt in einen Elternbereich mit eigenem großen Bad und 2 kleinen Zimmern sowie eine Einliegerwohnung mit 2 Zimmern, Küche, Diele und Bad. Das Haus ist voll unterkellert und bietet auch hier viele Möglichkeiten. Es entspricht technisch dem Baujahr: Fenster, Heizung, Bäder, Oberböden, Schwimmbad, Außenbereiche ... müssen renoviert / erneuert werden. Wir schätzen den Aufwand auf mehr als 100.000 EUR.Sie erhalten hier ein Haus, das heute in der Solidität und Größe (265 m² Wohnfläche) kaum noch gebaut wird.


Ausstattung


Lage



Ähnliche Anzeigen
+++ EMS-MAKLER - Na klar! +++ KA1 Sanierte 2 Zimmer Wohnung in Top Lage EG
ID-Nummer: 23901
+++ EMS-MAKLER - Na klar! +++ KA1 Sanierte 2 Zimmer Wohnung in Top Lage EG
 
Lingen
432.00 €
  • 2
    Zimmer (gesamt)
  • 87,00 m2
    Ca. Wohnfläche:
Schicke 2-R-Wohnung in Chemnitz-Kappel mit Balkon, WG-geeignet, Laminat
ID-Nummer: 88795
Schicke 2-R-Wohnung in Chemnitz-Kappel mit Balkon, WG-geeignet, Laminat
 
Chemnitz
258.00 €
  • 2
    Zimmer (gesamt)
  • 51,00 m2
    Ca. Wohnfläche:
Neuwertige 3-Zimmer-Dachgeschosswohnung Rügländer Viertel Ansbach
ID-Nummer: 25616
Neuwertige 3-Zimmer-Dachgeschosswohnung Rügländer Viertel Ansbach
 
Ansbach
129,000.00 €
  • 3
    Zimmer (gesamt)
  • 68,00 m2
    Ca. Wohnfläche:

"Immobilienangebote: Immobilien gewerblich und privat kostenlos inserieren Für Immobilienmakler: Nutzen Sie unsere Open-Immo-Schnittstelle"