VERKAUFT !!! Pflegeheim St. Johann: 4,22% Rendite! Jetzt Mit-Investor werden!

St. Johann 144900 21,34 m2
Elisabeth Holder
Company Agent 07122/8295394
Details der Immobilie
  • ID-Nummer : 115956
  • Preis: 144,900.00 €
  • Ca. Wohnfläche: 21,34 m2
  • Zimmer (gesamt): 1
  • Energiepass
  • Art: Bedarfsausweis
  • Endenergiebedarf in kWh/(m²*a):
  • Baujahr: 2018
  • Käuferprovision: 0

Adresse
  • Straße: Mühlstr.
  • Hausnummer: 6
  • Postleitzahl: 72813
  • Stadt: St. Johann

Objektbeschreibung

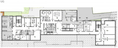
Machen Sie Ihre Immobiliengeschäfte mit unserem Können und unserer Erfahrung zu Ihrem Erfolg! Wir helfen Ihnen gerne: kompetent, ehrlich und seriös. Wir suchen laufen Kauf- und Mietobjekte. Sprechen Sie uns gerne an. Tel.: 07122/8295394 oder 0176-61040561. Sämtliche Appartements im Objekt sind verkauft! Sollten Sie eine Kapitalanlage im Pflegeheim suchen, wenden Sie sich bitte an uns, wir arbeiten künftig auch mit anderen Bauträgern zusammen. Sollten Sie uns eine Seniorenimmobilie (Bauträger oder Einzelverkäufer) zum Verkauf anbieten wollen, melden Sie sich ebenfalls gerne, wir suchen laufend nach Objekten im Seniorensegment! Tel.: 0176-61040561 Was bieten wir Ihnen hier? Sie kaufen ein Pflegeappartement in St. Johann (Reutlingen, Kreis). Der moderne Neubau verfügt über insgesamt 52 + 6 Pflegeplätze, die als komfortable und barrierefreie Zimmer gebaut werden. Es gibt 52 Einbettzimmer und drei Doppel-Appartements (je 2 Einbettzimmer). Alle Bewohnerzimmer verfügen über ein eigenes Badezimmer mit Dusche, WC und Waschtisch. In jeder Etage wird ein Gemeinschaftsraum mit Wohnküche erstellt. Die Gemeinschaftsräume verfügen jeweils über einen Balkon bzw. eine Terrasse. Je Etage sind ein Dienstzimmer und div. Lagerräumlichkeiten und Abstellräume vorhanden. Ein Pflegebad befindet sich im Obergeschoss. Das gesamte Gebäude ist barrierefrei. Das dürfen Sie von Ihrer Investition in Ihre Altersvorsorge erwarten: - Ein Appartement mit Grundbuchabsicherung, einem Mietvertrag über 20 Jahre mit 2 x 5 Jahre Verlängerungsoption (alles notariell beurkundet). Die Immobilie kann vererbt, verschenkt, beliehen oder verkauft werden! - Der Erwerber sichert sich durch ein bevorzugtes Belegungsrecht den eigenen Pflegeplatz und/oder eine lebenslange Immobilienrente! - Die Zahlung der Miete an Sie als Erwerber erfolgt auch bei Leerstand pünktlich. Mietgarantie über 20 Jahre mit 2 x 5 Jahre Verlängerung = hohe Planungssicherheit und hohe Dauerrendite für den Erwerber!!! - Sie als Erwerber gehen nicht in Vorleistung: es fallen keine Nebenkosten (Zahlungen von Strom, Wasser, Gas usw.) an! - Dies ist Sache des Betreibers. - Der Erwerber müht sich mit keiner Mietersuche - Die Vermietung ist Sache des Betreibers. - Miete wird bei Erhöhung der Pflegesätze automatisch angepasst / Inflationsschutz. - Miete beträgt im ersten Jahr mtl. 395 Eur, im zweiten Jahr mtl. 435 Eur und ab dem dritten Jahr mtl. mind. 510 Eur. Ab dem dritten Jahr beträgt die Rendite somit mind. 4,223% bezogen auf den Kaufpreis. - Eine sehr wertige Neubausubstanz - ebenso ein hoher Qualitätsstandard nach neuesten Altenpflegeerkenntnissen mit bedürfnisorientierter Ausstattung. Die neuesten Standards der EnEV und des Brandschutzes werden hier bereits umgesetzt. Die neuesten Standards in der Pflege wie Gruppenbetreuung und Einbettzimmer werden bereits umgesetzt. Auf absehbare Zeit kommen hier somit keine Umbaumaßnahmen, die bei älteren Bestandsimmobilien jedoch möglich sein können! - Instandhaltung nur für Dach und Fach. Die Instandhaltungsrücklage aus der Miete beträgt hierfür 10 Eur/mtl. für die Instandhaltung im Gebäude ist der Betreiber verantwortlich. Er wird hierfür eine Hauswirtschafterin und einen Hausmeister beschäftigen. - Günstige Finanzierung - nutzen Sie das noch immer niedrige Zinsniveau UND die günstigen KfW Darlehen und Zuschüsse des Programms: Bauen, Wohnen, Energie sparen: Kredit 153 - Dank hervorragender energetischer Standards können hier vom Erwerber 100.000 Euro - pro Appartement! - beantragt werden!!! - Gerne ist Ihnen Immobilien Dr. Holder bei der Finanzierung behilflich. Wir verfügen über diverse Kontakte zu exzellenten Finanzierungsgebern und Finanzierungsvermittlern aus der Region. - Steuerliche Vorteile durch Abschreibungen, ein Teil Ihrer Einkommenssteuer fließt an Sie zurück. Pflege ist ein großer und konjunkturell unabhängiger Wachstumsmarkt der Zukunft - bereits heute kann der Bedarf nicht gedeckt werden. Unser Betreiber arbeitet hoch professionell und zeichnet sich durch Erfahrung und Fachkenntnis aus. Der Betreiber und das Heim werden zudem laufend kontrolliert (z.B. Heimaufsicht).


Ausstattung

Moderne und werthaltige Architektur Bedürfnisorientierte Ausstattung Wärmepumpe Fußbodenheizung im Wohnbereich Bedarfsspitzen werden mit einer Gasbrennwerttherme abgefangen Photovoltaik-Anlage (KfW 55) Nachweis Brandschutz Brandmeldeanlage Schwesternrufanlage Desorientierten-Schutz Sicherheitsbeleuchtung SAT-Anlage Türsprechanlage Fluchtweg-Türüberwachung PV-Anlage Blitzschutz


Lage

St. Johann ist eine Gemeinde auf der Schwäbischen Alb, etwa 8 km östlich von Reutlingen. Die Gde. St. Johann ist mit einem großen Teil seiner Gemarkung Teil des Biosphärengebiets Schwäbische Alb. Die sechs Ortsteile der Gemeinde, namentlich Bleichstetten, Gächingen, Lonsingen, Ohnastetten, Upfingen und Würtingen, liegen auf der Albhochfläche. Der Gestütshof St. Johann mit dem bekannten Fohlenhof ist eine Domäne des Haupt- und Landgestüts Marbach (Gde. Gomadingen). Der Gestütshof St. Johann hat der Gemeinde auch seinen Namen gegeben. Die nachfolgend genannten Städte und Gemeinden grenzen direkt an die Gemeinde St. Johann: Dettingen an der Erms, Bad Urach, Münsingen, Gomadingen, Engstingen, Lichtenstein, Pfullingen, Eningen unter Achalm und Metzingen. Die L 380 verbindet St. Johann im Norden mit Reutlingen. Die L 249 verbindet St. Johann mit Bad Urach und der B 28. Die Ortsteile sind untereinander über Kreisstraßen verbunden. In St. Johann sind Ärzte, Zahnarzt, Apotheke, Metzger, Bäcker, Ladengeschäfte, zwei Supermärkte, Frisöre, mannigfaltige Handwerker und Gewerbebetriebe, Poststelle und Banken vorhanden. Kleinkind- und Kinderbetreuung ist ebenso vorhanden wie Schulen bis zur Werksrealschule. Eine Altenpflege ist vor Ort, ein hochmodernes Pflegeheim entsteht. St. Johann ist die Modellgemeinde für Inklusion im Landreis Reutlingen. St. Johann bietet die Möglichkeit von vielfältigen Freizeitaktivitäten insbesondere im Outdoorbereich. Ein aktives Vereinsleben bereichert die sozialen Strukturen der Ortschaften.



Ähnliche Anzeigen
** PROVISIONSFREI ** Neubau-Wohnungen als Eigenheim oder Kapitalanlage
ID-Nummer: 27407
** PROVISIONSFREI ** Neubau-Wohnungen als Eigenheim oder Kapitalanlage
 
Garmisch-Partenkirchen
355,700.00 €
  • 2
    Zimmer (gesamt)
  • 83,00 m2
    Ca. Wohnfläche:
Wohnung mit gutem Zuschnitt!
ID-Nummer: 39572
Wohnung mit gutem Zuschnitt!
 
Limbach-Oberfrohna
238.00 €
  • 2
    Zimmer (gesamt)
  • 48,00 m2
    Ca. Wohnfläche:
Lichtdurchflutete komfortable Dachgeschosswohnung
ID-Nummer: 36368
Lichtdurchflutete komfortable Dachgeschosswohnung
 
Wuppertal
480.00 €
  • 3
    Zimmer (gesamt)
  • 80,00 m2
    Ca. Wohnfläche:

"Immobilienangebote: Immobilien gewerblich und privat kostenlos inserieren Für Immobilienmakler: Nutzen Sie unsere Open-Immo-Schnittstelle"