Ihren Wunsch nach einer Traumwohnung können Sie sich jetzt PROVISIONSFREI erfüllen

Stadthagen 82000 129,00 m2
Details der Immobilie
  • ID-Nummer : 89848
  • Preis: 82,000.00 €
  • Ca. Wohnfläche: 129,00 m2
  • Zimmer (gesamt): 4
  • Energiepass
  • Art: Bedarfsausweis
  • Endenergiebedarf in kWh/(m²*a):
  • Baujahr: 0
  • Käuferprovision: 0

Adresse
  • Straße:
  • Hausnummer:
  • Postleitzahl: 31655
  • Stadt: Stadthagen

Objektbeschreibung

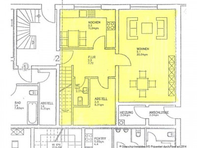
Bei dem PROVISIONSFREI zu erwerbenden Objekt handelt es sich um ein historisches Gebäude welches als Gesamtensemble mit den benachbarten Gebäuden unter Ensemble-Denkmalschutz steht. Das Objekt befindet sich in ruhiger und dennoch verkehrsgünstiger Lage. Das Wohnhaus mit 6 Einheiten und 2 Stk. Eingängen wurde 1994 faktisch neu (im Innenausbau) erstellt. Durch die Eingangssituation sind über den Hauseingang nur 3 Stk Wohnungen tangiert. Das Objekt wurde in Massivbauweise erstellt, die Wände bestehen überwiegend aus Mauerwerk, die Fassade besitzt die Optik der klassischen "Backsteinfassade", Die Dacheindeckung besteht aus roten Betondachsteinen, die Fenster sind Holzfenster mit Isolierverglasung aus 1994. Die Beheizung erfolgt über eine gasbefeuerte Zentralheizung. Energieverbrauchausweis, Endenergieverbrauch 100,57 kWh/(m².a), Hauptenergieträger Heizung: Gas, Baujahr: 1994. Hier haben Sie auch ihre Heizkosten im Griff! Dieses können sie aus dem, für das Baujahr günstigen Energiekennwert, abzulesen. Auf 129 m² Wohnfläche, über 2-3 Ebenen, präsentiert sich ihnen ein nicht dem üblichen Mainstream entsprechendes Raumprogramm. Die Raumanordnung entnehmen Sie bitte den anliegenden Grundrissen. Neben dem auf den Grundrissen zu ersehenden gepflegten Wohnbereich hat die Wohnung einen kleinen auf dem Grundstück geduldeten Gartenbereich zur eigenen Nutzung, dieser kann bei Bedarf übernommen werden. Bei Bedarf, steht ein Abstellraum im derzeit gemeinschaftlich genutztem Nebengelass zur Verfügung.. Der Fernsehempfang erfolgt über einen Sattelitenanschluss, DSL als Internetzugang ist möglich.


Ausstattung


Lage



Ähnliche Anzeigen
Mit Super Zinsangebot ins große Haus- Viel Platz für große Familie
ID-Nummer: 32322
Mit Super Zinsangebot ins große Haus- Viel Platz für große Familie
 
Fischbachtal
322,000.00 €
  • 6
    Zimmer (gesamt)
  • 189,00 m2
    Ca. Wohnfläche:
HEGERICH: Studentenappartement in perfekter Lage!
ID-Nummer: 36548
HEGERICH: Studentenappartement in perfekter Lage!
 
München
580.00 €
  • 1
    Zimmer (gesamt)
  • 25,00 m2
    Ca. Wohnfläche:
***GEMÜTLICHE RENOVIERTE 3ZKBB-ETAGENWOHNUNG MIT BALKON IN OS-SONNENHÜGEL ZUM 01.07.2015***
ID-Nummer: 29286

"Immobilienangebote: Immobilien gewerblich und privat kostenlos inserieren Für Immobilienmakler: Nutzen Sie unsere Open-Immo-Schnittstelle"