ALEXANDER SUITES - mitten in Mitte am Alexanderplatz - provisionsfreier Erstbezug

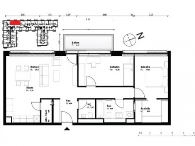
Berlin 999 86,00 m2
Details der Immobilie
  • ID-Nummer : 87183
  • Preis: 999.00 €
  • Ca. Wohnfläche: 86,00 m2
  • Zimmer (gesamt): 3
  • Energiepass
  • Art: Bedarfsausweis
  • Endenergiebedarf in kWh/(m²*a):
  • Baujahr: 2015
  • Käuferprovision: 0

Adresse
  • Straße: Alex-Wedding-Straße 1
  • Hausnummer:
  • Postleitzahl: 10178
  • Stadt: Berlin

Objektbeschreibung

Die neuen Stadtwohnungen ALEXANDER SUITES liegen mit grünen Hofgärten und großzügigen Grundrissen abgeschirmt und ruhig in zweiter Reihe der Alexanderstraße, direkt gegenüber dem Alexanderplatz und bieten eine hochwertige Ausstattung. Ab dem 01.10.2015 können zahlreiche Wohnungen mit 1-4 Zimmer bezogen werden.


Ausstattung


Lage



Ähnliche Anzeigen
Gelsenkirchen, Ausbauhaus, Neubau-Erstbezug  !!! zentraleLage,
ID-Nummer: 24179
Gelsenkirchen, Ausbauhaus, Neubau-Erstbezug !!! zentraleLage,
 
Gelsenkirchen
119,000.00 €
  • 4
    Zimmer (gesamt)
  • 120,00 m2
    Ca. Wohnfläche:
FLATmix.de/   Helle, voll möblierte 2-ZKB-Whg. mit TAGESLICHTBAD in Herford
ID-Nummer: 26201
FLATmix.de/ Helle, voll möblierte 2-ZKB-Whg. mit TAGESLICHTBAD in Herford
 
Herford-Herringhausen
550.00 €
  • 2
    Zimmer (gesamt)
  • 60,00 m2
    Ca. Wohnfläche:
1 Haus, 2 Familien, 1 Preis !!! - Opel ADAM Aktion
ID-Nummer: 105838
1 Haus, 2 Familien, 1 Preis !!! - Opel ADAM Aktion
 
Ense
269,108.00 €
  • 8.5
    Zimmer (gesamt)
  • 209,00 m2
    Ca. Wohnfläche:

"Immobilienangebote: Immobilien gewerblich und privat kostenlos inserieren Für Immobilienmakler: Nutzen Sie unsere Open-Immo-Schnittstelle"