ansehnliches Mehrfamilienhaus in begehrter Lage von Malente

Malente 218500 329,00 m2
Details der Immobilie
  • ID-Nummer : 84204
  • Preis: 218,500.00 €
  • Ca. Wohnfläche: 329,00 m2
  • Zimmer (gesamt): 10
  • Energiepass
  • Art: Bedarfsausweis
  • Endenergiebedarf in kWh/(m²*a):
  • Baujahr: 1906
  • Käuferprovision: 0

Adresse
  • Straße:
  • Hausnummer:
  • Postleitzahl: 23714
  • Stadt: Malente

Objektbeschreibung

Zum Angebot steht ein ansehnliches Mehrfamilienhaus mit drei Wohneinheiten in begehrter Lage von Malente.
Einkaufsmöglichkeiten und das Zentrum von Malente sowie der Kellersee sind in wenigen Gehminuten erreichbar.
Auf dem rückwärtigen Grundstück befindet sich ein Nebenbau, welcher derzeit als Garage genutzt wird. Um diesen zu erreichen, gibt es ein Wegerecht über das Nachbargrundstück.
Damalig wurde die Immobilie als Arztpraxis nebst Eigentümerwohnung genutzt.
Die Wohnung im Obergeschoss ist derzeit unbefristet vermietet. Der Mietvertrag wird Ihnen gerne auf Wunsch übergeben.
Die Wohnungen im Erdgeschoss und Dachgeschoss werden frei übergeben.
Das Erdgeschoss wurde in den vergangenen Jahren mit einigem Aufwand modernisiert.
Das Dachgeschoss bietet Ihnen die Möglichkeit, dieses in mehrere Wohnungen zu unterteilen, da diverse Bäder vorhanden sind.
Die Immobilie ist voll unterkellert. Im Keller ist eine Garage vorhanden.
Die Befeuerung erfolgt über eine Ölzentralheizung.
Es besteht ein gewisser Investitionsbedarf.
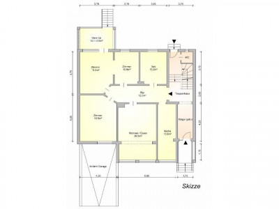
Wir haben die Grundrisse anhand von uns vorliegenden Unterlagen neu zeichnen lassen. Aus diesem Grunde wird für die Angabe der Wohn- und Nutzflächen keine Haftung / Gewähr übernommen.
Das Baujahr ist nur geschätzt.
Ein Energieausweis ist in der Erstellung und wird Ihnen bei einer Besichtigung ausgehändigt.
Eine Übergabe erfolgt nach Absprache.


Ausstattung


Lage



Ähnliche Anzeigen
Hausbesichtigung am Sa. und So. von 11 - 17 Uhr -- Am Turm 16 - Siegburg
ID-Nummer: 87067
Hausbesichtigung am Sa. und So. von 11 - 17 Uhr -- Am Turm 16 - Siegburg
 
Wiehl
214,900.00 €
  • 5
    Zimmer (gesamt)
  • 162,00 m2
    Ca. Wohnfläche:
Issum: Reihenmittelhaus mit Charme
ID-Nummer: 27893
Issum: Reihenmittelhaus mit Charme
 
Issum
734.00 €
  • 5
    Zimmer (gesamt)
  • 128,00 m2
    Ca. Wohnfläche:
Freistehender Wohnbungalow, massiv gebaut und mit schönem Grundstück!
ID-Nummer: 41826
Freistehender Wohnbungalow, massiv gebaut und mit schönem Grundstück!
 
Röhrsdorf
249,000.00 €
  • 4
    Zimmer (gesamt)
  • 94,00 m2
    Ca. Wohnfläche:

"Immobilienangebote: Immobilien gewerblich und privat kostenlos inserieren Für Immobilienmakler: Nutzen Sie unsere Open-Immo-Schnittstelle"