TOPLAGE IM ORTSKERN KLADOW -attraktive Gewerbefläche in zentraler Lage

Berlin 1776 148,00 m2
Details der Immobilie
  • ID-Nummer : 74073
  • Preis: 1,776.00 €
  • Ca. Wohnfläche: 148,00 m2
  • Zimmer (gesamt): -
  • Energiepass
  • Art: Bedarfsausweis
  • Endenergiebedarf in kWh/(m²*a):
  • Baujahr: 1936
  • Käuferprovision: 0

Adresse
  • Straße:
  • Hausnummer:
  • Postleitzahl: 14089
  • Stadt: Berlin

Objektbeschreibung

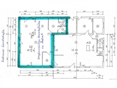
Die zu vermietende Gewerbefläche mit straßenseitiger Lage umfasst 148 m² mit einem Hauptraum von ca. 115 m². Hier sind vielfältige gewerbliche Nutzungen wie Einzelhandel, Arzt- oder sonstige Medizinpraxis, Bank, Büro, Versicherungsagentur, Bistro oder für eine öffentliche Einrichtung denkbar. Durch zwei separate Zugänge ist eine hohe Flexibilität der Raumaufteilung gewährleistet. Der südliche Eingang mündet zunächst in einen Sicherheitsbereich von ca. 21 m² (ehemaliger Standort für EC-Automaten). Dieser Bereich lässt sich durch elektrisch absenkbare Trennwände vollständig vom übrigen Gewerbebereich abtrennen. Die Böden sind mit Fliesen bzw. Linoleum ausgestattet, die Raumhöhe umfasst 3,75 m. Bis auf den Sicherheits- und Eingangsbereich verfügen alle anderen Fenster über Außenjalousien. Die Beheizung erfolgt über eine eigene Ölzentralheizung. In den Räumen sind die Heizkörper vorwiegend in der Decke installiert, so dass keinen Störfaktor an Stellflächen darstellen. Das Anbringen von Adress- oder Reklameschildern im Außenbereich ist mit der unteren Denkmalbehörde abzusprechen. Rechts und links des Gebäudes sind Zufahrten vorhanden. Rückseitig finden sich Parkplätze, die zum Preis von 50,- EUR/ Monat je Parkplatz und je nach Verfügbarkeit zusätzlich angemietet werden können.Energieausweis nach Energieverbrauch gemäß EnEV, Energieträger Heizöl, Energieverbrauchskennwert Heizung u. Warmwasser 194 kWh/ (m²a)Das Gesamtgebäude steht unter Denkmalschutz, gemäß EnEV § 16 wäre ein Energieausweis nicht erforderlich.


Ausstattung


Lage



Ähnliche Anzeigen
Schicke 3-Zi.-Wohnung mit ausgebautem DG im Zentrum von Treuchtlingen
ID-Nummer: 33787
Schicke 3-Zi.-Wohnung mit ausgebautem DG im Zentrum von Treuchtlingen
 
Treuchtlingen
125,000.00 €
  • 3
    Zimmer (gesamt)
  • 100,00 m2
    Ca. Wohnfläche:
1- Raum Wohnung zentral in Sassnitz
ID-Nummer: 72509
1- Raum Wohnung zentral in Sassnitz
 
Sassnitz
132.00 €
  • 1
    Zimmer (gesamt)
  • 21,00 m2
    Ca. Wohnfläche:
Großes Einfamilienhaus mit ELW in ruhiger Stadtrandlage Meßkirch - von privat
ID-Nummer: 35821
Großes Einfamilienhaus mit ELW in ruhiger Stadtrandlage Meßkirch - von privat
 
Meßkirch
289,000.00 €
  • 7
    Zimmer (gesamt)
  • 253,00 m2
    Ca. Wohnfläche:

"Immobilienangebote: Immobilien gewerblich und privat kostenlos inserieren Für Immobilienmakler: Nutzen Sie unsere Open-Immo-Schnittstelle"