Zwangsversteigerung: Mehrfamilienhaus mit 4 Wohneinheiten

Offenbach 197400 227,00 m2
Details der Immobilie
  • ID-Nummer : 73586
  • Preis: 197,400.00 €
  • Ca. Wohnfläche: 227,00 m2
  • Zimmer (gesamt): 3
  • Energiepass
  • Art: Bedarfsausweis
  • Endenergiebedarf in kWh/(m²*a):
  • Baujahr: 1888
  • Käuferprovision: 0

Adresse
  • Straße:
  • Hausnummer:
  • Postleitzahl: 63071
  • Stadt: Offenbach

Objektbeschreibung

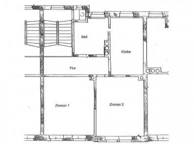
Mehrfamilienhaus mit 4 Wohneinheiten: Im Erd- und Dachgeschoss befindet sich jeweils eine 2-Zimmer-Wohnung, im 1. und 2. Obergeschoss jeweils eine 3-Zimmer-Wohnung. Im Kellergeschoss stehen 4 separate Kellerräume als Abstellmöglichkeiten zur Verfügung.Der Objektzustand entspricht nicht heutigen Ausstattungsstandards, es besteht allgemeiner Renovierungs- und Modernisierungsbedarf.Der angegebene Kaufpreis entspricht 70% des Verkehrswertes (= 282.000,00 EUR) aus dem gerichtlich bestellten Verkehrswertgutachten. Dieses Gutachten kann bei uns angefordert werden. Ein freier Verkauf vor der Versteigerung ist nicht möglich. Der Versteigerungstermin ist auf den 6. Juli 2015 anberaumt.Der Erwerb gegen Gebot ist nur im Versteigerungstermin und bei Gebotsabgabe vor Ort möglich. Etwaige im Exposé genannte Gebotsgrenzen sind unverbindlich. Das Meistgebot bei der Versteigerung kann diese überschreiten. Gerne sind wir bereit, mit Ihnen vorab den genauen Verfahrensablauf zu besprechen. Sie gehen sodann mit unserer fachkundigen Unterstützung in den Versteigerungstermin und werden dabei durch uns sicher begleitet.


Ausstattung


Lage



Ähnliche Anzeigen
HDIC  - provisionsfrei - TOLLE  BÜROS  IN  TOPZENTRALER  LAGE
ID-Nummer: 40451
HDIC - provisionsfrei - TOLLE BÜROS IN TOPZENTRALER LAGE
 
München
21,227.00 €
  • -
    Zimmer (gesamt)
  • 4,750,00 m2
    Ca. Wohnfläche:
KLANGWERK - tolle 2 Raumwohnung im Loftcharakter und mit Fußbodenheizung
ID-Nummer: 32429
KLANGWERK - tolle 2 Raumwohnung im Loftcharakter und mit Fußbodenheizung
 
Leipzig
379.00 €
  • 2
    Zimmer (gesamt)
  • 55,00 m2
    Ca. Wohnfläche:
Vorderhaus in zentraler Lage - ebenerdiges Wohnen!
ID-Nummer: 73480
Vorderhaus in zentraler Lage - ebenerdiges Wohnen!
 
Rhauderfehn
450.00 €
  • 3
    Zimmer (gesamt)
  • 91,00 m2
    Ca. Wohnfläche:

"Immobilienangebote: Immobilien gewerblich und privat kostenlos inserieren Für Immobilienmakler: Nutzen Sie unsere Open-Immo-Schnittstelle"