HDIC - provisionsfrei :: RUHIG und GRÜN in SCHWABING

München 4800 1,130,00 m2
Details der Immobilie
  • ID-Nummer : 40529
  • Preis: 4,800.00 €
  • Ca. Wohnfläche: 1,130,00 m2
  • Zimmer (gesamt): -
  • Energiepass
  • Art: Bedarfsausweis
  • Endenergiebedarf in kWh/(m²*a):
  • Baujahr: 1978
  • Käuferprovision: 0

Adresse
  • Straße:
  • Hausnummer:
  • Postleitzahl: 80797
  • Stadt: München

Objektbeschreibung

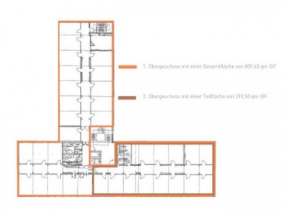
Top-attraktives freistehendes Bürogebäude mit hochwertiger Natursteinfassade, elegantem Entrée und hellem, freundlichen Foyerbereich. Über eine Rampe kann das Gebäude barrierefrei betreten werden. Die Raumaufteilung kann dem Mieterwunsch angepasst werden.Einer der beiden Aufzüge ist als Lastenaufzug nutzbar.Stellplätze: Es können TG-Stellplätze zu je 70,00 €/Monat angemietet werden.Archiv: Archiv- und Lagerflächen stehen für 5,00 €/m² zur Verfügung.Büro - 1. OG - ca. 810 m², teilbar ab ca. 320 m² Büro - 2. OG - ca. 320 m²


Ausstattung


Lage



Ähnliche Anzeigen
Platz satt für die Großfamilie oder zwei Generationen!
ID-Nummer: 83393
Platz satt für die Großfamilie oder zwei Generationen!
 
Dortmund
239,000.00 €
  • 7
    Zimmer (gesamt)
  • 180,00 m2
    Ca. Wohnfläche:
Gemütliche,2,5 Zi. EG-Eigentumswohnung, zentrumsnah in Nördlingen
ID-Nummer: 33641
Gemütliche,2,5 Zi. EG-Eigentumswohnung, zentrumsnah in Nördlingen
 
Nördlingen
77,000.00 €
  • 2
    Zimmer (gesamt)
  • 52,00 m2
    Ca. Wohnfläche:
Exclusive Wohnung im 1 OG in einer Seniorenresidenz zum Mieten
ID-Nummer: 25875
Exclusive Wohnung im 1 OG in einer Seniorenresidenz zum Mieten
 
Füssen
570.00 €
  • 2
    Zimmer (gesamt)
  • 61,00 m2
    Ca. Wohnfläche:

"Immobilienangebote: Immobilien gewerblich und privat kostenlos inserieren Für Immobilienmakler: Nutzen Sie unsere Open-Immo-Schnittstelle"