HDIC - provisionsfrei :: RUHIG und GRÜN in SCHWABING

München 7350 1,130,00 m2
Details der Immobilie
  • ID-Nummer : 40363
  • Preis: 7,350.00 €
  • Ca. Wohnfläche: 1,130,00 m2
  • Zimmer (gesamt): -
  • Energiepass
  • Art: Bedarfsausweis
  • Endenergiebedarf in kWh/(m²*a):
  • Baujahr: 1978
  • Käuferprovision: 0

Adresse
  • Straße:
  • Hausnummer:
  • Postleitzahl: 80797
  • Stadt: München

Objektbeschreibung

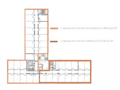
Top-attraktives freistehendes Bürogebäude mit hochwertiger Natursteinfassade, elegantem Entrée und hellem, freundlichen Foyerbereich. Über eine Rampe kann das Gebäude barrierefrei betreten werden. Die Raumaufteilung kann dem Mieterwunsch angepasst werden.Einer der beiden Aufzüge ist als Lastenaufzug nutzbar.Stellplätze: Es können TG-Stellplätze zu je 70,00 €/Monat angemietet werden.Archiv: Archiv- und Lagerflächen stehen für 5,00 €/m² zur Verfügung.Büro - 1. OG - ca. 810 m², teilbar ab ca. 320 m² Büro - 2. OG - ca. 320 m²


Ausstattung


Lage



Ähnliche Anzeigen
Großzügig Wohnen mit Terrasse im Grünen -25 Min. nach Stgt. mit der S4
ID-Nummer: 29928
Großzügig Wohnen mit Terrasse im Grünen -25 Min. nach Stgt. mit der S4
 
Benningen am Neckar
145,000.00 €
  • 2
    Zimmer (gesamt)
  • 66,00 m2
    Ca. Wohnfläche:
Mehrfamilienhaus mit alteingesessener Gaststätte in zentraler Lage von Ostwestfalen-Lippe !
ID-Nummer: 73581
Mehrfamilienhaus mit alteingesessener Gaststätte in zentraler Lage von Ostwestfalen-Lippe !
 
Bielefeld
660,000.00 €
  • 20
    Zimmer (gesamt)
  • 427,00 m2
    Ca. Wohnfläche:
Zwangsversteigerung Einfamilienhaus in 78661 Dietingen, Bei der Leimengrube
ID-Nummer: 37805
Zwangsversteigerung Einfamilienhaus in 78661 Dietingen, Bei der Leimengrube
 
Dietingen
265,000.00 €
  • -
    Zimmer (gesamt)
  • 182,00 m2
    Ca. Wohnfläche:

"Immobilienangebote: Immobilien gewerblich und privat kostenlos inserieren Für Immobilienmakler: Nutzen Sie unsere Open-Immo-Schnittstelle"