HDIC - provisionsfrei :: TOPFUNKTIONAL - BÜROS MIT LASTENAUFZUG - LEICHTE PRODUKTION

München 2588 499,00 m2
Details der Immobilie
  • ID-Nummer : 40323
  • Preis: 2,588.00 €
  • Ca. Wohnfläche: 499,00 m2
  • Zimmer (gesamt): -
  • Energiepass
  • Art: Bedarfsausweis
  • Endenergiebedarf in kWh/(m²*a):
  • Baujahr: 1990
  • Käuferprovision: 0

Adresse
  • Straße:
  • Hausnummer:
  • Postleitzahl: 81379
  • Stadt: München

Objektbeschreibung

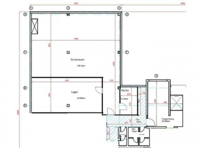
3-geschossiges, funktionales Bürogebäude mit großen Fensterfronten. Die schnörkellosen, hellen Büroflächen, die u.a. auch für leichte Fertigungstätigkeiten genutzt werden können, befinden sich im 1. und 2. Obergeschoss des gepflegten Bürohauses. Ein Lastenaufzug mit 1000 kg Tragkraft ist vorhanden. Die Raumaufteilung kann auf Mieterwunsch geändert werden. Durch die großen Fenster hat man einen sehr schönen Blick.Die Bodenbelastbarkeit beträgt 500 kg/m².Die Reinigungskosten sind in den Betriebskosten enthalten, auf Wunsch kann die hauseigene Kantine mitgenutzt werden, Frühstücksservice jeden Morgen.Es stehen insgesamt 3-4 Hofstellplätze zu je EUR 50,00/ Monat und 2 Tiefgaragenstellplätze zu je EUR 60,00/ Monat zur Verfügung.Freie Flächen :- 360,00 m² - 2. Obergeschoss rechts - 163,00 m² - 1. Obergeschoss rechts


Ausstattung


Lage



Ähnliche Anzeigen
Zwangsversteigerung Wohn- u. Geschäftsgebäude in 58730 Fröndenberg, Ardeyer Straße
ID-Nummer: 30772
Zwangsversteigerung Wohn- u. Geschäftsgebäude in 58730 Fröndenberg, Ardeyer Straße
 
Fröndenberg
434,000.00 €
  • -
    Zimmer (gesamt)
  • 470,00 m2
    Ca. Wohnfläche:
Großzügige Wohnung in HMÜ/Hemeln (O-2584)
ID-Nummer: 35405
Großzügige Wohnung in HMÜ/Hemeln (O-2584)
 
Hannoversch Münden
49,000.00 €
  • 5
    Zimmer (gesamt)
  • 170,00 m2
    Ca. Wohnfläche:
2-Raum Eigentumswohnung mit Balkon,  Erdwärme, Fußbodenheizung, Keller  u.  Stellplatz
ID-Nummer: 27282
2-Raum Eigentumswohnung mit Balkon, Erdwärme, Fußbodenheizung, Keller u. Stellplatz
 
Freiberg
123,027.00 €
  • 2
    Zimmer (gesamt)
  • 65,00 m2
    Ca. Wohnfläche:

"Immobilienangebote: Immobilien gewerblich und privat kostenlos inserieren Für Immobilienmakler: Nutzen Sie unsere Open-Immo-Schnittstelle"