Erwarten Sie mehr von Ihrem Zuhause! (KfW-Effizienzhaus 70)

Vettweiß 383670 189,00 m2
Details der Immobilie
  • ID-Nummer : 37981
  • Preis: 383,670.00 €
  • Ca. Wohnfläche: 189,00 m2
  • Zimmer (gesamt): 4
  • Energiepass
  • Art: Bedarfsausweis
  • Endenergiebedarf in kWh/(m²*a):
  • Baujahr: 2016
  • Käuferprovision: 0

Adresse
  • Straße:
  • Hausnummer:
  • Postleitzahl: 52391
  • Stadt: Vettweiß

Objektbeschreibung

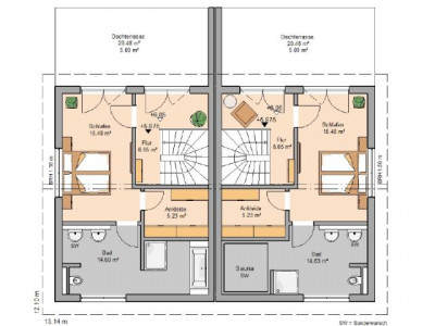
Energieeffizientes Bauen mit Kern-Haus. Dieses außergewöhnliche Architektenhaus punktet mit einer raffinierten Raumaufteilung gleich doppelt! Das Haus ist durch seine Bauweise ein Blickfang in jedem Baugebiet und als Doppelhaus auf den ersten Blick kaum zu erkennen. Das Erdgeschoss bietet einen angenehmen Platz für das alltägliche Leben - sowohl für eine 4-köpfige Familie als auch für Paare. Die bodentiefen Fenster spenden viel Tageslicht und bieten ein angenehmes Raumklima. Im Obergeschoss spiegelt sich diese Freundlichkeit in den beiden Räumen wieder, die als Kinder- oder Gästezimmer, aber auch als Home-Office genutzt werden können. Ein eigenes Badezimmer für die Kinder oder Gäste ist ebenfalls vorhanden. Das Dachgeschoss lässt keine Wünsche offen - neben dem großen Schlafbereich gibt es ein eigenes Badezimmer für diese Etage sowie einen Ankleidebereich. Vom Bett aus kann der Hausherr schon am frühen Morgen die Sonne genießen, denn dieses Dachgeschoss bietet einen herrlichen Blick auf die Dachterrasse. Der Bauherr kann sich zwischen einer Holz- oder Putz-Außenfassade entscheiden.Dieses Haus wird nach Ihren individuellen Wünschen geplant und ausgestattet!


Ausstattung


Lage



Ähnliche Anzeigen
HDIC - provisionsfrei  :  KLASSE BÜROFLÄCHEN  IN  BOGENHAUSEN
ID-Nummer: 40289
HDIC - provisionsfrei : KLASSE BÜROFLÄCHEN IN BOGENHAUSEN
 
München
6,525.00 €
  • -
    Zimmer (gesamt)
  • 10,816,00 m2
    Ca. Wohnfläche:
Zwangsversteigerung Eigentumswohnung in 59075 Hamm, Im Sundern
ID-Nummer: 36069
Zwangsversteigerung Eigentumswohnung in 59075 Hamm, Im Sundern
 
Hamm
70,000.00 €
  • -
    Zimmer (gesamt)
  • 88,00 m2
    Ca. Wohnfläche:
Zwangsversteigerung Etagenwohnung in 48529 Nordhorn, Obere Blanke
ID-Nummer: 90649
Zwangsversteigerung Etagenwohnung in 48529 Nordhorn, Obere Blanke
 
Nordhorn
36,400.00 €
  • 2
    Zimmer (gesamt)
  • 52,00 m2
    Ca. Wohnfläche:

"Immobilienangebote: Immobilien gewerblich und privat kostenlos inserieren Für Immobilienmakler: Nutzen Sie unsere Open-Immo-Schnittstelle"