Viel Platz im Traumhaus (KfW-Effizienzhaus 70)

Dahlem 297800 149,00 m2
Details der Immobilie
  • ID-Nummer : 37979
  • Preis: 297,800.00 €
  • Ca. Wohnfläche: 149,00 m2
  • Zimmer (gesamt): 5
  • Energiepass
  • Art: Bedarfsausweis
  • Endenergiebedarf in kWh/(m²*a):
  • Baujahr: 2016
  • Käuferprovision: 0

Adresse
  • Straße:
  • Hausnummer:
  • Postleitzahl: 53949
  • Stadt: Dahlem

Objektbeschreibung

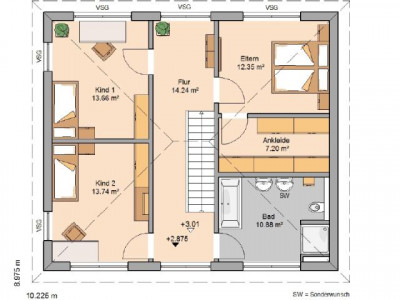
Der lichtdurchflutete Wohntraum 'Signus' lässt keine Wünsche offen. Auf zwei Vollgeschossen findet die ganze Familie Platz, um sich zu entspannen und frei zu entfalten. Die bodentiefen Fensterelemente machen das Haus zu einem Wohnerlebnis und zeigen die Großzügigkeit dieser zeitlosen Stadtvilla.Gleich im Eingangsbereich zeigt die Stadtvilla Signus durch ihre Offenheit was sie zu bieten hat. Eine große Garderobe verstaut die Jacken und Mäntel der Bewohner sowie Besucher. Über einen langen Flur, vorbei an der geradläufigen Treppe, gelangen Sie in den Wohn-/Essbereich des Hauses, an den auch die offene Küche Anschluss findet. Von hier bieten die bodentiefen Fenster einen herrlichen Blick in den Garten. Des Weiteren befindet sich im Erdgeschoss ein Home-Office, das auch als Gäste-Zimmer genutzt werden kann, als auch ein Hauswirtschaftsraum und ein Gäste-WC. Im Obergeschoss steht das Wohlbefinden jedes einzelnen Familienmitglieds im Vordergrund. Die Räume der Kinder sind großzügig gestaltet und sind ein angenehmer Rückzugsort. Das Elternschlafzimmer verfügt über ein angrenzendes Ankleidezimmer. Im Wellness-Bad kann die ganze Familie nach Herzenslust die Seele baumeln lassen.Dieses Haus wird nach Ihren individuellen Wünschen geplant und ausgestattet!


Ausstattung


Lage



Ähnliche Anzeigen
Zwangsversteigerung Mehrfamilienhaus in 17209 Altenhof, Freyensteiner Chaussee
ID-Nummer: 41674
Zwangsversteigerung Mehrfamilienhaus in 17209 Altenhof, Freyensteiner Chaussee
 
Altenhof
262,000.00 €
  • -
    Zimmer (gesamt)
  • 2,500,00 m2
    Ca. Wohnfläche:
Moderne und attraktive Doppelhaushälfte mit hübscher Küche in absolut ruhiger Feldrandlage gelegen!
ID-Nummer: 42112
Erlebnis-Camp / Ferien- und Freizeitanlage - zwischen Nord- u. Ostsee gelegen!
ID-Nummer: 73895
Erlebnis-Camp / Ferien- und Freizeitanlage - zwischen Nord- u. Ostsee gelegen!
 
Oster-Ohrstedt
625,000.00 €
  • -
    Zimmer (gesamt)
  • 537,00 m2
    Ca. Wohnfläche:

"Immobilienangebote: Immobilien gewerblich und privat kostenlos inserieren Für Immobilienmakler: Nutzen Sie unsere Open-Immo-Schnittstelle"