Baustart erfolgt. Moderne Doppelhaushälfte mit Garage

Emmerich 219800 98,00 m2
Details der Immobilie
  • ID-Nummer : 37897
  • Preis: 219,800.00 €
  • Ca. Wohnfläche: 98,00 m2
  • Zimmer (gesamt): 4
  • Energiepass
  • Art: Bedarfsausweis
  • Endenergiebedarf in kWh/(m²*a):
  • Baujahr: 2015
  • Käuferprovision: 0

Adresse
  • Straße: Auf dem Hundshövel 41
  • Hausnummer:
  • Postleitzahl: 46446
  • Stadt: Emmerich

Objektbeschreibung

Die moderne Einfamiliendoppelhaushälfte mit Garage wird in massiver Bauweise in Emmerich - Hüthum, Auf dem Hundshövel 41 errichtet. Das nach Südwesten ausgerichtete Grundstück hat eine Größe von ca. 250 m². Die linke Haushälfte ist bereits verkauft.

Baubeginn war im April 2015. Die Bauzeit beträgt 8 Monate.

Die Fassadenfläche des Hauses erhält ein Wärmedämmverbundsystem inklusive einer Endbeschichtung aus Kunstharz und einem Silikonharzanstrich.

Die Heizungsanlage wird durch eine Solaranlage unterstützt.

Nach Architektenangaben beträgt die Wohnfläche ca. 99 m².

Zur Aufteilung:

Erdgeschoss:
Diele, Gäste-WC, Hauswirtschaftsraum, Wohn- / Esszimmer mit offener Küche

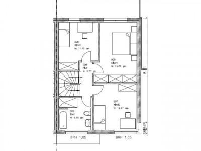
Obergeschoss:
Flur, 3 Schlafzimmer und Bad

Die Errichtung erfolgt schlüsselfertig gemäß Baubeschreibung.

Im Kaufpreis enthalten sind zum Beispiel:
- Bodenfliesen in den Bereichen Diele, WC,HWR, Küche und Bad
- Raumweise steuerbare Fußbodenheizung
- Solaranlage für die Warmwasserunterstützung
- 3-fach Verglasung mit Rollläden
- Sanitärobjekte
- große Garage

Nachfolgende Sonderausstattung ist u.a. ebenfalls im Kaufpreis enthalten:
- anthrazitfarbene Fenster/Fenstertüren/Haustür
- Sektionaltor anthrazitfarben mit Antrieb
- bodengleiche Dusche
- Aussenfensterbänke aus Granit
- Terrassenüberdachung

Nicht im Kaufpreis enthalten sind zum Beispiel: Die Malerarbeiten in den Zimmern, die Oberböden im Wohnzimmer und in den Schlafzimmern, die Einbauküche, die Gestaltung der Gartenanlage, die Terrasse, die Zuwegung zum Haus und zur Garage.

Die Garage hat ein Außenmaß von ca. 3 x 8,90 m.

Eigenleistungen sind nach Absprache möglich.


Ausstattung


Lage



Ähnliche Anzeigen
Optimales Apartment für anspruchsvolle in Stadtmitte
ID-Nummer: 76788
Optimales Apartment für anspruchsvolle in Stadtmitte
 
Düsseldorf
430.00 €
  • 1
    Zimmer (gesamt)
  • 27,00 m2
    Ca. Wohnfläche:
Energiesparhaus in nächster Nähe zur Natur in Top-angebundender Kleinstadt
ID-Nummer: 27608
Energiesparhaus in nächster Nähe zur Natur in Top-angebundender Kleinstadt
 
Friedberg (Hessen)
288,500.00 €
  • 4
    Zimmer (gesamt)
  • 150,00 m2
    Ca. Wohnfläche:
Kleine Wohnung in ruhiger und grüner Wohnlage!
ID-Nummer: 39593
Kleine Wohnung in ruhiger und grüner Wohnlage!
 
Limbach-Oberfrohna
187.00 €
  • 2
    Zimmer (gesamt)
  • 39,00 m2
    Ca. Wohnfläche:

"Immobilienangebote: Immobilien gewerblich und privat kostenlos inserieren Für Immobilienmakler: Nutzen Sie unsere Open-Immo-Schnittstelle"