Halle 360m² Büro u. Sozialräume 100m² Kran 3,2t. (O-B-S 3)

Rösrath 3000 960,00 m2
Details der Immobilie
  • ID-Nummer : 37323
  • Preis: 3,000.00 €
  • Ca. Wohnfläche: 960,00 m2
  • Zimmer (gesamt): -
  • Energiepass
  • Art: Bedarfsausweis
  • Endenergiebedarf in kWh/(m²*a):
  • Baujahr: 1999
  • Käuferprovision: 0

Adresse
  • Straße:
  • Hausnummer:
  • Postleitzahl: 51503
  • Stadt: Rösrath

Objektbeschreibung

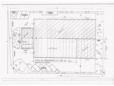
Gewerbehalle 360m² (12,5x28,6m) mit Kran 3,2t. über die gesamte Hallenfläche. Großes Tor zur Straße 4x4,62m.Große Tageslicht Fenster und Lichtkuppeln mit Rauchabzug.360m² Halle050m² Büro 1und 2 im 1.OG. Teeküche und WC050m² Meisterbüro Kleinteilelager, Sozialräume im EG.500m² Freiflächen,Lagerplätze,Parkplätze,Grünfläche.960m² Gesamtfläche


Ausstattung


Lage



Ähnliche Anzeigen
Zwangsversteigerung Doppelhaushälfte in 39279 Hobeck, August-Bebel-Straße
ID-Nummer: 36071
Zwangsversteigerung Doppelhaushälfte in 39279 Hobeck, August-Bebel-Straße
 
Hobeck
31,000.00 €
  • -
    Zimmer (gesamt)
  • 2,048,00 m2
    Ca. Wohnfläche:
Ländliches Einfamlienhaus im Grünen
ID-Nummer: 29211
Ländliches Einfamlienhaus im Grünen
 
Wischhafen (Hamelwördener Moor)
115,000.00 €
  • 4
    Zimmer (gesamt)
  • 120,00 m2
    Ca. Wohnfläche:
energetisch sanierte 3,5 Zimmerwohnung mit Garten, sonnige Lage
ID-Nummer: 29129
energetisch sanierte 3,5 Zimmerwohnung mit Garten, sonnige Lage
 
Siegsdorf
630.00 €
  • 3
    Zimmer (gesamt)
  • 90,00 m2
    Ca. Wohnfläche:

"Immobilienangebote: Immobilien gewerblich und privat kostenlos inserieren Für Immobilienmakler: Nutzen Sie unsere Open-Immo-Schnittstelle"