Großzügige ruhige OG Wohnung in Zetel nahe Ortsmitte

Zetel 550 127,00 m2
Details der Immobilie
  • ID-Nummer : 37177
  • Preis: 550.00 €
  • Ca. Wohnfläche: 127,00 m2
  • Zimmer (gesamt): 3
  • Energiepass
  • Art: Bedarfsausweis
  • Endenergiebedarf in kWh/(m²*a):
  • Baujahr: 1973
  • Käuferprovision: 0

Adresse
  • Straße: Hauptsstr. 15
  • Hausnummer:
  • Postleitzahl: 26340
  • Stadt: Zetel

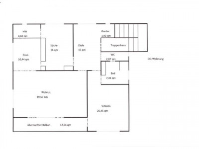
Objektbeschreibung

Großzügige, hochwertige OG-Wohnung in Zweifamilienhaus in Zetel – ruhig, doch zentral gelegen.Mit separatem Eingang/ Treppenhaus.Überdachter Balkon in Südlage von Wohn- und Schlafraum zu begehen.Neue Fenster und Balkontüren mit 3-fach Verglasung; Rollladen an Wohn-, Ess- und Schlafzimmerfenster.Parkettfußboden in Wohn-, Ess- und Schlafzimmer.Das Esszimmer mit Zugang zur Küche ist durch eine wandbreite Schiebetür mit dem Wohnraum verbunden.Zwischen Küche und Esszimmer befindet sich ein Einbauschrank (Poggenpohl).Die übrige Kücheneinrichtung könnte vom Vormieter übernommen werden.Das Badezimmer mit Wanne und großer ebenerdiger Dusche sowie das separate WC haben eine Fußbodenheizung.Zur Wohnung gehören ein Kellerraum und eine Garage.


Ausstattung


Lage



Ähnliche Anzeigen
Stadvilla im gepflegten Zustand/E
ID-Nummer: 30810
Stadvilla im gepflegten Zustand/E
 
Leipzig
680,000.00 €
  • 12
    Zimmer (gesamt)
  • 300,00 m2
    Ca. Wohnfläche:
Helle 1 ZKB in gesuchter Lage im Hinterhaus
ID-Nummer: 83343
Helle 1 ZKB in gesuchter Lage im Hinterhaus
 
Mannheim - Neckarstadt
62,000.00 €
  • 1
    Zimmer (gesamt)
  • 43,00 m2
    Ca. Wohnfläche:
Sie suchen Ruhe? Hier ist Ihre neue Wohnung!
ID-Nummer: 39605
Sie suchen Ruhe? Hier ist Ihre neue Wohnung!
 
Limbach-Oberfrohna
312.00 €
  • 3
    Zimmer (gesamt)
  • 63,00 m2
    Ca. Wohnfläche:

"Immobilienangebote: Immobilien gewerblich und privat kostenlos inserieren Für Immobilienmakler: Nutzen Sie unsere Open-Immo-Schnittstelle"