Einfamilienhaus mit Einliegerwohnung und Ferienwohnung in Emmelsbüll-Horsbüll

Emmelsbüll-Horsbüll 85000 229,00 m2
Details der Immobilie
  • ID-Nummer : 35924
  • Preis: 85,000.00 €
  • Ca. Wohnfläche: 229,00 m2
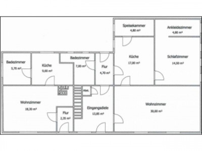
  • Zimmer (gesamt): 10
  • Energiepass
  • Art: Bedarfsausweis
  • Endenergiebedarf in kWh/(m²*a):
  • Baujahr: 0
  • Käuferprovision: 0

Adresse
  • Straße:
  • Hausnummer:
  • Postleitzahl: 25924
  • Stadt: Emmelsbüll-Horsbüll

Objektbeschreibung

LageAbsolut ruhige Lage am Rande der ehemaligen Halligwarft „Althorsbüll“ unweit der Nordsee (ca. 1,0 Km) gelegen.Nach Klanxbüll mit dem Bahnhof zur Insel Sylt, sowie Einkaufsmöglichkeiten beträgt die Entfernung ca. 5,0 Km. Die Nordsee mit herrlichem Weitblick zur Insel Föhr ist nur wenige hundert Meter entfernt. BauweiseMauerwerk massiv, Dacheindeckung mit Pfannen am Anbau/ Einliegerwohnung, Haupthaus mit Eternit. Fenster und Türen überwiegend aus Kunststoff mit Isolierverglasung. HeizungÖlzentralheizung mit WarmwasserbereitungGrundstück680,00 m² großes Gartengrundstück, Rasenfläche.BesonderesVorhanden ist eine separate Einliegerwohnung, sowie eine separat nutzbare Wohnung im Dachgeschoss. Beide Wohnungen sind vermietet und erzielen eine monatliche Warmmiete von € 385,00 und € 450,00. Die gesamten Mieteinnahmen für die Wohnungen betragen also monatlich € 835,00. (Warmmiete) EnergieausweisEnergieausweis: ist beantragtEndenergieverbrauch: Endenergiebedarf: Wesentl. Energieträger:Energieeffizienzklasse:Energieausweis gültig bis: Baujahr lt. Energieausweis: Irrtum vorbehalten!


Ausstattung


Lage



Ähnliche Anzeigen
Renovierungsbedürftiges Einfamilienhaus in ruhiger Lage
ID-Nummer: 41188
Renovierungsbedürftiges Einfamilienhaus in ruhiger Lage
 
Barbing
180,000.00 €
  • 5
    Zimmer (gesamt)
  • 130,00 m2
    Ca. Wohnfläche:
Alles neu - echt genial die Kleine!  ***Provisionsfrei***
ID-Nummer: 40749
Alles neu - echt genial die Kleine! ***Provisionsfrei***
 
Ratingen
55,000.00 €
  • 1
    Zimmer (gesamt)
  • 30,00 m2
    Ca. Wohnfläche:
Büro- / Gewerberäume in Friedrichshafen-Ailingen
ID-Nummer: 37017
Büro- / Gewerberäume in Friedrichshafen-Ailingen
 
Friedrichshafen
400.00 €
  • -
    Zimmer (gesamt)
  • 45,00 m2
    Ca. Wohnfläche:

"Immobilienangebote: Immobilien gewerblich und privat kostenlos inserieren Für Immobilienmakler: Nutzen Sie unsere Open-Immo-Schnittstelle"