Saaltrakt mit eigenem Eingang und vielen Nebenräumen in Iserlohn-Wermingsen

Iserlohn 3195 1,065,00 m2
Details der Immobilie
  • ID-Nummer : 35591
  • Preis: 3,195.00 €
  • Ca. Wohnfläche: 1,065,00 m2
  • Zimmer (gesamt): -
  • Energiepass
  • Art: Bedarfsausweis
  • Endenergiebedarf in kWh/(m²*a):
  • Baujahr: 1900
  • Käuferprovision: 0

Adresse
  • Straße:
  • Hausnummer:
  • Postleitzahl: 58636
  • Stadt: Iserlohn

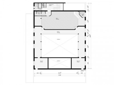
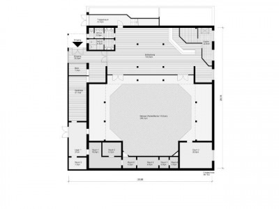
Objektbeschreibung

Bei diesem Objekt handelt es sich um den Saaltrakt eines ehemaligen Hotels. Dadurch gibt es auf dem Grundstück entlang der Straße und hinter dem Objekt ausreichende Parkmöglichkeiten. Dieses Objekt bietet aufgrund der Größe und der Räumlichkeiten sehr vielseitige Nutzungsmöglichkeiten, z.B. für Ausstellungen / Galerien, als Verkaufraum (z.B.Factory, Outlet), als Lager oder, oder, oder ...Das Hotel wurde zum Wohnhaus umgebaut, in dem sich im Erdgeschoss ein gepflegtes Restaurant befindet. Der Saaltrakt schließt sich nach hinten an das Wohngebäude an und verfügt über einen separaten Eingang.Im Erdgeschoss befindet sich ein großzügiger Eingangsbereich mit sanitären Einrichtungen. Im hinteren Bereich gibt es eine Bar mit angrenzender Küche (evtl. Pausenraum für die Angestellten). Vom Eingangsbereich gelangt man in den großen Saal und die angrenzenden Nebenräume, die z.B als Lagerräume o. ä. verwendet werden können.Das Obergeschoss verfügt über einen zweiten Saal ebenfalls mit sanitären Einrichtungen und den Zugängen zur Galerie. An die Galerie grenzen zwei weitere Räume an, die z.B. als Büros nutzbar sind.Das gesamte Gebäude befindet sich in einem gepflegten Zustand, es gibt allerdings je nach Nutzung der Räumlichkeiten evtl. Renovierungsbedarf.


Ausstattung


Lage



Ähnliche Anzeigen
teilbares Großraumbüro (IP 1 RL 68 - 1OG)
ID-Nummer: 88053
teilbares Großraumbüro (IP 1 RL 68 - 1OG)
 
Iserlohn
500.00 €
  • 1
    Zimmer (gesamt)
  • 90,00 m2
    Ca. Wohnfläche:
Provisionsfrei: Charmante Gartenwohnung im Komponistenkiez
ID-Nummer: 36026
Provisionsfrei: Charmante Gartenwohnung im Komponistenkiez
 
Berlin
244,528.00 €
  • 3
    Zimmer (gesamt)
  • 80,00 m2
    Ca. Wohnfläche:
Genau Ihr Stil:
ID-Nummer: 26357
Genau Ihr Stil: "Newstyle 105"! Ein massives Einfamilienhaus in wundervoller Lage!
 
Bad Kreuznach
189,900.00 €
  • 4
    Zimmer (gesamt)
  • 101,00 m2
    Ca. Wohnfläche:

"Immobilienangebote: Immobilien gewerblich und privat kostenlos inserieren Für Immobilienmakler: Nutzen Sie unsere Open-Immo-Schnittstelle"