Laubach: Einzigartige, verkehrsgünstig gelegene Hofreite mit Ausbaureserven! Preis VB

Laubach 89000 90,00 m2
Details der Immobilie
  • ID-Nummer : 35569
  • Preis: 89,000.00 €
  • Ca. Wohnfläche: 90,00 m2
  • Zimmer (gesamt): 3
  • Energiepass
  • Art: Bedarfsausweis
  • Endenergiebedarf in kWh/(m²*a):
  • Baujahr: 1760
  • Käuferprovision: 0

Adresse
  • Straße:
  • Hausnummer:
  • Postleitzahl: 35321
  • Stadt: Laubach

Objektbeschreibung

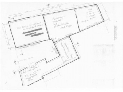
Diese einzigartige und charmante Hofreite befindet sich in ruhiger und schöner Wohnlage von Laubach. Das ca. 458 m² große Grundstück bietet Ihnen viel Platz für Ihre Kreativität. Individuelles Wohnen und Arbeiten können hier perfekt miteinander verbunden werden. Das Haupthaus mit ca. 90 m² Wfl. besteht aus zwei Stockwerken. Im Erdgeschoss befinden sich die geräumige und gemütliche Küche mit offenem Kamin, das Tageslichtbad mit Badewanne und abgetrenntem WC, sowie eine praktische kleine Speisekammer. Im ersten Stock befinden sich insgesamt drei Zimmer zur individuellen Nutzung. Ein absolutes Highlight ist das einzigartige Wohnzimmer im mittelalterlichen Stil mit offenem Kamin und beeindruckenden Deckenmalereien. Das Dachgeschoss bietet weiteres Ausbaupotential für 1 bis 2 Zimmer. Weiterhin gibt es auf dem Grundstück eine an das Haus angrenzende Scheune mit zum Teil ausgebauten Räumen, welche zur Zeit als Geschäftsräume dienen. Diese könnten ebenfalls zu Wohnzwecken ausgebaut und genutzt werden. Eine Werkstatt ist ebenso vorhanden wie eine Garage. Auf der linken Seite des Grundstückes befindet sich zudem ein ca. 250 Jahre altes oberhessisches Fachwerkhaus. Dieses wurde bereits entkernt; es wurden einige Balken ersetzt und Wasser- und Stromanschlüsse installiert. Durch einen Krankheitsfall wurde das Haus nicht weiter saniert, sämtliche Baupläne liegen aber vor. Im Laufe der letzten Jahren wurden bereits einige Modernisierungsmaßnahmen vorgenommen, im Jahr 2000 wurde eine neue Heizungsanlage installiert, sowie das komplette Dach der Hofreite erneuert.Lassen sie sich von der verborgenen Schönheit dieses Anwesens begeistern - sie werden überrascht sein! Zögern Sie nicht und vereinbaren Sie noch heute einen Besichtigungstermin mit uns.


Ausstattung


Lage



Ähnliche Anzeigen
Zwangsversteigerung Zweifamilienhaus in 49124 Georgsmarienhütte, Am Brock
ID-Nummer: 30743
Zwangsversteigerung Zweifamilienhaus in 49124 Georgsmarienhütte, Am Brock
 
Georgsmarienhütte
88,000.00 €
  • -
    Zimmer (gesamt)
  • 225,00 m2
    Ca. Wohnfläche:
Zwangsversteigerung Haus in 66482 Zweibrücken, Schwarzwaldstr.
ID-Nummer: 30754
Zwangsversteigerung Haus in 66482 Zweibrücken, Schwarzwaldstr.
 
Zweibrücken
35,300.00 €
  • -
    Zimmer (gesamt)
  • 295,00 m2
    Ca. Wohnfläche:
Zwangsversteigerung Zweifamilienhaus in 55278 Dalheim, Neugasse
ID-Nummer: 87684
Zwangsversteigerung Zweifamilienhaus in 55278 Dalheim, Neugasse
 
Dalheim
19,000.00 €
  • -
    Zimmer (gesamt)
  • 143,00 m2
    Ca. Wohnfläche:

"Immobilienangebote: Immobilien gewerblich und privat kostenlos inserieren Für Immobilienmakler: Nutzen Sie unsere Open-Immo-Schnittstelle"