Baulücke mit Petersbergblick

Wachtberg 648800 176,00 m2
Details der Immobilie
  • ID-Nummer : 33180
  • Preis: 648,800.00 €
  • Ca. Wohnfläche: 176,00 m2
  • Zimmer (gesamt): 4
  • Energiepass
  • Art: Bedarfsausweis
  • Endenergiebedarf in kWh/(m²*a):
  • Baujahr: 2015
  • Käuferprovision: 0

Adresse
  • Straße:
  • Hausnummer:
  • Postleitzahl: 53343
  • Stadt: Wachtberg

Objektbeschreibung

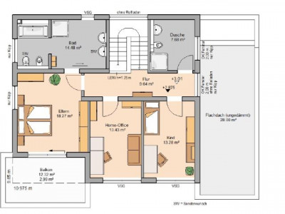
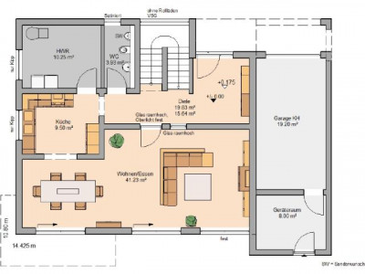
Das Kern-Haus Cube verkörpert Kompromisslosigkeit in Form und Funktion. Die Fassadengestaltung folgt den Proportionen des modernen Bauhausstils. Zur Straße präsentiert sich das Haus in einer modernen Ansicht und bietet mit seiner Eingangsüberdachung einen praktischen Nutzen. Die Rückseite öffnet sich mit großen Fenstern dem eigenen Garten und bietet mit dem Balkon einen besonderen Nutzen. Im Inneren setzt sich die klare Linienführung des Hauses fort: die großzügige Diele präsentiert sich jedem Besucher und bietet durch deckenhohe Glaselemente einen Einblick in den großen Wohn- und Essbereich des Hauses. An die geräumige Küche ist ein Hauswirtschaftsraum angeschlossen, der viel Platz für die Technik, aber auch Vorräte bietet. Im Obergeschoss befinden sich die Privaträume. Das Elternschlafzimmer erhält einen direkten Zugang auf den Balkon. Das separate, große Wohlfühl-Badezimmer kann lediglich aus dem Elternzimmer betreten werden. Weiterhin befinden sich im Obergeschoss zwei Zimmer, die beliebig als Kinderzimmer, Gästezimmer oder Home-Office genutzt werden können. Ein hierfür vorgesehenes Duschbad vervollständigt das Raumangebot. Eine zweite Variante des Dachgeschosses beherbergt zwei Kinderzimmer und ein Home-Office. In diesem Falle wird das Badezimmer von allen Bewohnern des Hauses genutzt. Design und Wohnlichkeit verleihen diesem Lifestyle-Haus einen starken Ausdruck – nie war modernes Wohnen schöner!Dieses Haus wird nach Ihren individuellen Wünschen geplant und ausgestattet!


Ausstattung


Lage



Ähnliche Anzeigen
DIETZ: Historische Immobilie mit 554 qm großen Grundstück in Schaafheim - Mosbach
ID-Nummer: 38897
DIETZ: Historische Immobilie mit 554 qm großen Grundstück in Schaafheim - Mosbach
 
Schaafheim
129,000.00 €
  • 6
    Zimmer (gesamt)
  • 150,00 m2
    Ca. Wohnfläche:
Großes EFH in Lauchheim mit 3 ,5 Zimmern
ID-Nummer: 33459
Großes EFH in Lauchheim mit 3 ,5 Zimmern
 
Lauchheim
980.00 €
  • 3
    Zimmer (gesamt)
  • 145,00 m2
    Ca. Wohnfläche:
Willich-Münchheide, 20 Minuten bis Düsseldorf Flughafen-International
ID-Nummer: 72603
Willich-Münchheide, 20 Minuten bis Düsseldorf Flughafen-International
 
Willich
1,883.00 €
  • -
    Zimmer (gesamt)
  • 273,00 m2
    Ca. Wohnfläche:

"Immobilienangebote: Immobilien gewerblich und privat kostenlos inserieren Für Immobilienmakler: Nutzen Sie unsere Open-Immo-Schnittstelle"