***1,5 Zimmer Wohnung mit riesiger Terrasse v.privat***

Norderstedt 79000 35,00 m2
Details der Immobilie
  • ID-Nummer : 32105
  • Preis: 79,000.00 €
  • Ca. Wohnfläche: 35,00 m2
  • Zimmer (gesamt): 1
  • Energiepass
  • Art: Bedarfsausweis
  • Endenergiebedarf in kWh/(m²*a):
  • Baujahr: 1976
  • Käuferprovision: 0

Adresse
  • Straße: Am Ochsenzoll 147
  • Hausnummer:
  • Postleitzahl: 22851
  • Stadt: Norderstedt

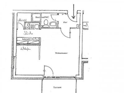
Objektbeschreibung

Kleine und gepflegte Rotklinker-Wohnanlage mit großem Gemeinschaftsparkplatz vor dem Haus. Zudem verfügt das Haus über einen separaten Fahrradkeller direkt am Hauseingang und einen gemeinschaftlichen Wasch- und Trockenkeller. Die gesamte Wohnung wird über eine Fußbodenheizung erwärmt. *AUSSTATTUNGDer Wohn- und Schlafbereich ist mit dunklem Laminatfußboden ausgelegt. Küche und Bad sind gefliest und befinden sich in einem gepflegten Zustand. Die Küche ist mit allen notwendigen E-Geräten ausgestattet, zudem befindet sich hier noch eine praktische Abstellkammer. Das Highlight dieser optimal geschnittenen SINGLE-Wohnung ist die riesige nach Süden ausgerichtete Terrasse. Momentan ist das Wohnzimmer vom Schlafbereich nicht durch eine Wand abgegrenzt. Hier lässt sich jedoch ohne großen Aufwand eine Leichtbauwand o.ä. wieder einbauen.


Ausstattung


Lage



Ähnliche Anzeigen
Architektenhaus mit Einliegerbereich in Neustadts Kernstadt
ID-Nummer: 24466
Architektenhaus mit Einliegerbereich in Neustadts Kernstadt
 
Neustadt
439,000.00 €
  • 8
    Zimmer (gesamt)
  • 325,00 m2
    Ca. Wohnfläche:
groß. Einfamilienhaus mit 2 Garagen, Balkon und schönem Gartenin ruhiger Sackgasse in Schwalbach gelegen
ID-Nummer: 26250
Zwangsversteigerung Erdgeschosswohnung in 12159 Berlin, Handjerystraße
ID-Nummer: 37863
Zwangsversteigerung Erdgeschosswohnung in 12159 Berlin, Handjerystraße
 
Berlin
300,000.00 €
  • 4
    Zimmer (gesamt)
  • 136,00 m2
    Ca. Wohnfläche:

"Immobilienangebote: Immobilien gewerblich und privat kostenlos inserieren Für Immobilienmakler: Nutzen Sie unsere Open-Immo-Schnittstelle"