Trier-, Nähe Hauptbahnhof - Attraktive Wohnung im Energiesparhaus in gefragter Lage, Günstige Darlehen ab 1% Zins möglich

Trier 242300 83,00 m2
Details der Immobilie
  • ID-Nummer : 29312
  • Preis: 242,300.00 €
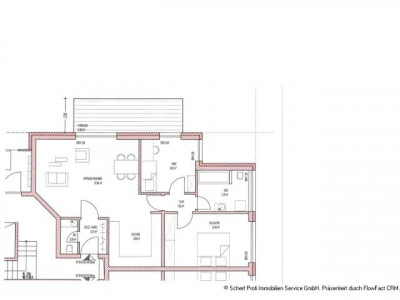
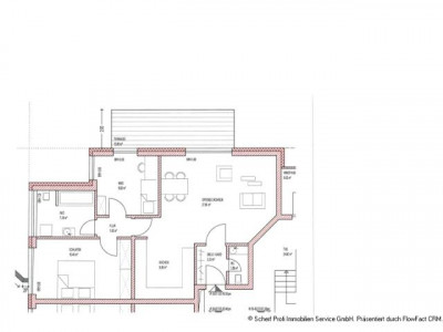
  • Ca. Wohnfläche: 83,00 m2
  • Zimmer (gesamt): 3
  • Energiepass
  • Art: Bedarfsausweis
  • Endenergiebedarf in kWh/(m²*a):
  • Baujahr: 2015
  • Käuferprovision: 0

Adresse
  • Straße:
  • Hausnummer:
  • Postleitzahl: 54292
  • Stadt: Trier

Objektbeschreibung

Wohnen in Trier, Altkürenz, nur ca. 1 km vom Hauptbahnhof entfernt - Neubau von attraktiven Eigentumwohnungen mit moderner Technik und guter Ausstattung mit Aufzug und Tiefgarage


Ausstattung


Lage



Ähnliche Anzeigen
HDIC - provisionsfrei - TRAUMBÜROS  AN  DER  S-BAHN-STAMMSTRECKE
ID-Nummer: 40428
HDIC - provisionsfrei - TRAUMBÜROS AN DER S-BAHN-STAMMSTRECKE
 
München
17,050.00 €
  • -
    Zimmer (gesamt)
  • 9,000,00 m2
    Ca. Wohnfläche:
Schnäppchen mit Keller Grundstück Erbpacht
ID-Nummer: 105333
Schnäppchen mit Keller Grundstück Erbpacht
 
Hamm
163,798.00 €
  • 5.5
    Zimmer (gesamt)
  • 136,00 m2
    Ca. Wohnfläche:
** TOP-EXKLUSIVES FRIESENHAUS - DIREKT AM WALD - SACKGASSE - WINTERGARTEN!
ID-Nummer: 29052
** TOP-EXKLUSIVES FRIESENHAUS - DIREKT AM WALD - SACKGASSE - WINTERGARTEN!
 
Hage
249,000.00 €
  • 4
    Zimmer (gesamt)
  • 140,00 m2
    Ca. Wohnfläche:

"Immobilienangebote: Immobilien gewerblich und privat kostenlos inserieren Für Immobilienmakler: Nutzen Sie unsere Open-Immo-Schnittstelle"