Zauberhafte Gartenwohnung

Oberammergau 550 71,00 m2
Details der Immobilie
  • ID-Nummer : 28420
  • Preis: 550.00 €
  • Ca. Wohnfläche: 71,00 m2
  • Zimmer (gesamt): 3
  • Energiepass
  • Art: Bedarfsausweis
  • Endenergiebedarf in kWh/(m²*a):
  • Baujahr: 0
  • Käuferprovision: 0

Adresse
  • Straße:
  • Hausnummer:
  • Postleitzahl: 82487
  • Stadt: Oberammergau

Objektbeschreibung

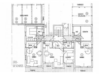
Zauberhafte Gartenwohnungseparater Eingang, 2 Zimmer im EG + 1 großes Zimmer im UG, Bad mit Wanne, EBK, ca. 71m² Wfl., nutzbare W/Nfl. 87m², Südterrasse mit Garten, Bergblick, Keller, Duplexparker


Ausstattung


Lage



Ähnliche Anzeigen
Das haben Sie gesucht! Genau das Richtige für Ihre Familie! (KfW-Effizienzhaus 70)
ID-Nummer: 37983
Das haben Sie gesucht! Genau das Richtige für Ihre Familie! (KfW-Effizienzhaus 70)
 
Vettweiß
380,800.00 €
  • 4
    Zimmer (gesamt)
  • 160,00 m2
    Ca. Wohnfläche:
ID-Nummer: 24434
"Top 1,5 Zi.-Appartment mit schönem Balkon und Autoabstellplatz"
 
Heilbronn
380.00 €
  • 1
    Zimmer (gesamt)
  • 46,00 m2
    Ca. Wohnfläche:
Monatlich nur € 750,- -- jetzt nur noch € 650,-- mtl.
ID-Nummer: 104942
Monatlich nur € 750,- -- jetzt nur noch € 650,-- mtl.
 
Sassenberg
246,500.00 €
  • 4.5
    Zimmer (gesamt)
  • 143,00 m2
    Ca. Wohnfläche:

"Immobilienangebote: Immobilien gewerblich und privat kostenlos inserieren Für Immobilienmakler: Nutzen Sie unsere Open-Immo-Schnittstelle"