Schickes Einfamilienhaus in Sackgassenendlage, super Grundstück!

Dörpen 149000 116,00 m2
Details der Immobilie
  • ID-Nummer : 28229
  • Preis: 149,000.00 €
  • Ca. Wohnfläche: 116,00 m2
  • Zimmer (gesamt): 4
  • Energiepass
  • Art: Bedarfsausweis
  • Endenergiebedarf in kWh/(m²*a):
  • Baujahr: 1984
  • Käuferprovision: 0

Adresse
  • Straße:
  • Hausnummer:
  • Postleitzahl: 26892
  • Stadt: Dörpen

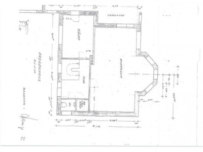
Objektbeschreibung

Dieses schicke Einfamilienhaus befindet sich i einer absolut ruhigen Wohnlage von Kluse. Sackgassenendlage, Einkaufsmöglichkeiten und Arzt zu Fuß erreichbar.Die Raumaufteilung des Wohnhauses ist durchdacht und durch die intelligente Fensterflächengestaltung lichtdurchflutet.Im Dielen bez. Eingangsbereich befindet sich eine sehr ansprechende Marmortreppenanlage dieses führt nicht nur ins Dachgeschoss sondern auch in den Kellerbereich (komplett unterkellert).Durch eine Glastür gelangt man in den großzügigen Wohn/Esszimmerbereich, hier befindet sich eine effektive Kaminofenanlage. Der Esszimmerbereich verfügt über einen pfiffigen Erker, das Wohnzimmer verfügt des weiteren über ein bodentiefes Fensterelement durch welches man auf die teilüberdachte Gartenterrasse gelangt.Im Dachgeschoss befinden sich 3 Schlafzimmer sowie ein Badezimmer, zwei Schlafzimmer verfügen über einen direkt angrenzenden Balkon.


Ausstattung


Lage



Ähnliche Anzeigen
Zwangsversteigerung Mehrfamilienhaus in 57413 Finnentrop, Glingestraße
ID-Nummer: 42195
Zwangsversteigerung Mehrfamilienhaus in 57413 Finnentrop, Glingestraße
 
Finnentrop
144,390.00 €
  • -
    Zimmer (gesamt)
  • 560,00 m2
    Ca. Wohnfläche:
Zwangsversteigerung Eigentumswohnung in 45888 Gelsenkirchen, Kopernikusstraße
ID-Nummer: 90695
Zwangsversteigerung Eigentumswohnung in 45888 Gelsenkirchen, Kopernikusstraße
 
Gelsenkirchen
49,000.00 €
  • 2
    Zimmer (gesamt)
  • 60,00 m2
    Ca. Wohnfläche:
Unique - einzigartig
ID-Nummer: 106582
Unique - einzigartig
 
Hamm
326,369.00 €
  • 6.5
    Zimmer (gesamt)
  • 138,91 m2
    Ca. Wohnfläche:

"Immobilienangebote: Immobilien gewerblich und privat kostenlos inserieren Für Immobilienmakler: Nutzen Sie unsere Open-Immo-Schnittstelle"