Altersgerechte Eigentumswohnungen mit Fahrstuhl in Freiberg - unterschiedliche Größen!

Freiberg 122170 64,00 m2
Details der Immobilie
  • ID-Nummer : 27244
  • Preis: 122,170.00 €
  • Ca. Wohnfläche: 64,00 m2
  • Zimmer (gesamt): 2
  • Energiepass
  • Art: Bedarfsausweis
  • Endenergiebedarf in kWh/(m²*a):
  • Baujahr: 2016
  • Käuferprovision: 0

Adresse
  • Straße:
  • Hausnummer:
  • Postleitzahl: 09599
  • Stadt: Freiberg

Objektbeschreibung

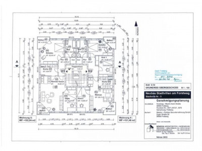
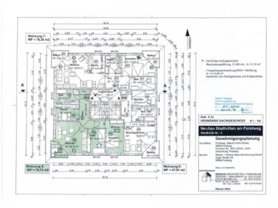
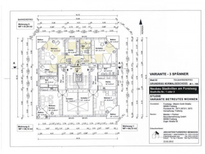
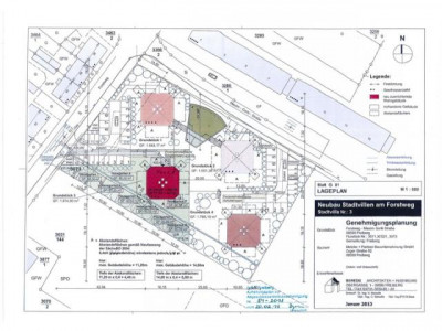
Es entstehen als Neubebauung vier 3-geschossige (Optional 4-geschossig) Mehrfamilienhäuser; wovon zwei Häuser mit einem eingeschossigen Mehrzweckbau verbunden werden (siehe Lageplan). Ihre Architektur zitiert mit ihren gedrungenen und durch Balkone, große französische Fenster und Fensterläden gegliederten Baukörpern große städtische Villen mit südlichem Ambiente.Dieses Gefühl vermitteln auch die Wohnungen, die ihren Bewohnern mit großen Fenstern, mit hellen, belichteten Fluren und großzügigen Grundrissen mit Essdielen und auf Wunsch zum Wohnbereich hin geöffneten Küchen ein Stück südliches Flair in unsere Bergstadt am Rande des Erzgebirges bringen werden.Auch speziell die Anforderungen älterer und in diesen Wohnungen älter werdender Menschen sind sehr gut erfüllt, da generell eine barrierefreie Erschließung und auch der Einbau eines Aufzugs vorgesehen sind.Bei Planung und Konzeption der Häuser wurde mit dem Standard KfW 60 besonderer Wert auf Energieeffizienz gelegt, die sich in vergleichsweise niedrigen Betriebskosten niederschlägt.Fast jede Wohnung erhält außerdem die Möglichkeit eines individuellen Kaminanschlusses.Die Gebäude sind komplett unterkellert, so dass jede Wohnung über einen eigenen Kellerraum verfügt - zusätzlich sind AbstellräumeZ-bereiche in den Wohnungen vorhanden.Die Wohnungen ordnen sich im Grundriss um einen Erschließungskern mit Treppenhaus und Aufzug an. Die Erschließung der Wohnungen ist barrierefrei nach DIN 18 025 geplant (Eingang, Rampen, Aufzug, Wohnungszugang). Die behinderten- und rollstuhlgerechte Ausstattung der Wohnungen muss gesondert vereinbart werden.Die kompakten, beinahe würfelförmigen Baukörper besitzen ein sehr günstiges Verhältnis von Hüllfläche zum Volumen. Zusammen mit den für die Sonneneinstrahlung günstigen großzügigen Fenstern wirkt sich dies sehr positiv auf den Energiebedarf der Anlage aus (passive Sonnenenergienutzung).


Ausstattung


Lage



Ähnliche Anzeigen
Zwangsversteigerung Eigentumswohnung in 76332 Bad Herrenalb, Gaistalstr.
ID-Nummer: 26623
Zwangsversteigerung Eigentumswohnung in 76332 Bad Herrenalb, Gaistalstr.
 
Bad Herrenalb
60,000.00 €
  • -
    Zimmer (gesamt)
  • 94,00 m2
    Ca. Wohnfläche:
Freistehendes Zweifamilienhaus mit viel Platz zum Toben in sonniger Wohnlage!
ID-Nummer: 74029
Freistehendes Zweifamilienhaus mit viel Platz zum Toben in sonniger Wohnlage!
 
Großrosseln
275,000.00 €
  • 8
    Zimmer (gesamt)
  • 202,00 m2
    Ca. Wohnfläche:
3 1/2 - Zimmer mit Gartenbenutzung u. Garage
ID-Nummer: 37049
3 1/2 - Zimmer mit Gartenbenutzung u. Garage
 
Wurster Nordseeküste-Dorum
400.00 €
  • 3
    Zimmer (gesamt)
  • 74,00 m2
    Ca. Wohnfläche:

"Immobilienangebote: Immobilien gewerblich und privat kostenlos inserieren Für Immobilienmakler: Nutzen Sie unsere Open-Immo-Schnittstelle"