EFH DT-Königsberg in absolut ruhiger Traumlage unmittelbar am Palaisgarten, von privat ohne Makler

Detmold 395000 153,00 m2
Details der Immobilie
  • ID-Nummer : 26316
  • Preis: 395,000.00 €
  • Ca. Wohnfläche: 153,00 m2
  • Zimmer (gesamt): 8
  • Energiepass
  • Art: Bedarfsausweis
  • Endenergiebedarf in kWh/(m²*a):
  • Baujahr: 1959
  • Käuferprovision: 0

Adresse
  • Straße:
  • Hausnummer:
  • Postleitzahl: 32756
  • Stadt: Detmold

Objektbeschreibung

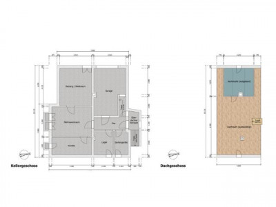
Das Haus bietet im Erd- und Obergeschoss in 7 Zimmern, Küche, Waschküche, Vollbad und 2 separaten WCs auf 153 m2 Wohnfläche viel Platz. 3 Abstell- bzw. Vorratsräume erleichtern die Unterbringung der Dinge des täglichen Alltags.Ein Highlight im Sommer, aber auch für sonnige Frühlings- und Herbsttage ist der lichtdurchflutete Wintergarten, der zum weitläufigen Grundstück nach Süden hin ausgerichtet ist. Sonnenplätze direkt im Freien bieten die vorgelagerte, großzügige Terrasse und ein Balkon im Obergeschoss.Das Dachgeschoss ist auf einer Teilfläche ausgebaut mit einem weiteren Zimmer, die restliche Geschossfläche ist ausbaufähig und bietet somit zusätzliche Platzreserve.Zusammen mit den 5 Räumen in der vollkommen trockenen Vollunterkellerung stehen insgesamt 85 m2 Nutzfläche zur Verfügung. Dazu gehört auch die beheizbare Garage, die sich im Keller des Hauses befindet. Der Garagenzugang ist bequem und witterungsunabhängig direkt vom Keller aus möglich.Die parkähnliche Gestaltung des Gartens unterstreicht den großzügigen Charakter des 824 m2 großen Grundstücks, auf dem auch ein kleines Wasserbassin seinen Platz hat und bei Bedarf Erfrischung für Kinder bietet. Aber auch erwachsene Füße freuen sich darin im Sommer über eine Abkühlung.Außer der Garage verfügt das Grundstück noch über 2 PKW-Stellplätze im Grundstückszugangsbereich, einer davon ist seitlich der Hauptzufahrt angeordnet und somit vollkommen unabhängig nutzbar.Beigefügt sind neben Fotos vom Äußeren und Inneren des Hauses auch Grundrisse aller Geschosse und ein Lageplan des Grundstücks zu finden. Die beiliegenden pdf-Dokumente enthalten 3D-Ansichten von allen Geschossen und vermitteln einen guten räumlichen Eindruck vom Inneren des Hauses.


Ausstattung


Lage



Ähnliche Anzeigen
Zwangsversteigerung Wohnungen in 44866 Bochum, Kirchstr.
ID-Nummer: 82844
Zwangsversteigerung Wohnungen in 44866 Bochum, Kirchstr.
 
Bochum
111,000.00 €
  • -
    Zimmer (gesamt)
  • 98,00 m2
    Ca. Wohnfläche:
FLATmix.de / Großzügige 4 -Zimmer-Wohnung mit Blick auf Wiesen
ID-Nummer: 26148
FLATmix.de / Großzügige 4 -Zimmer-Wohnung mit Blick auf Wiesen
 
Stemwede-Destel
350.00 €
  • 4
    Zimmer (gesamt)
  • 100,00 m2
    Ca. Wohnfläche:
Zwangsversteigerung Mehrfamilienhaus in 25840 Friedrichstadt, Am Stadtfeld
ID-Nummer: 29549
Zwangsversteigerung Mehrfamilienhaus in 25840 Friedrichstadt, Am Stadtfeld
 
Friedrichstadt
140,000.00 €
  • -
    Zimmer (gesamt)
  • 299,00 m2
    Ca. Wohnfläche:

"Immobilienangebote: Immobilien gewerblich und privat kostenlos inserieren Für Immobilienmakler: Nutzen Sie unsere Open-Immo-Schnittstelle"