HDIC - provisionsfrei :: RUHIG und GRÜN in SCHWABING

München 12150 1,130,00 m2
Details der Immobilie
  • ID-Nummer : 25796
  • Preis: 12,150.00 €
  • Ca. Wohnfläche: 1,130,00 m2
  • Zimmer (gesamt): -
  • Energiepass
  • Art: Bedarfsausweis
  • Endenergiebedarf in kWh/(m²*a):
  • Baujahr: 1978
  • Käuferprovision: 0

Adresse
  • Straße:
  • Hausnummer:
  • Postleitzahl: 80797
  • Stadt: München

Objektbeschreibung

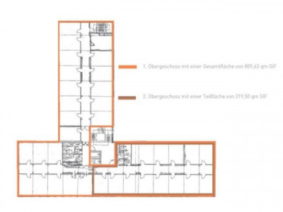
Top-attraktives freistehendes Bürogebäude mit hochwertiger Natursteinfassade, elegantem Entrée und hellem, freundlichen Foyerbereich. Über eine Rampe kann das Gebäude barrierefrei betreten werden. Die Raumaufteilung kann dem Mieterwunsch angepasst werden.Einer der beiden Aufzüge ist als Lastenaufzug nutzbar.Stellplätze: Es können TG-Stellplätze zu je 70,00 €/Monat angemietet werden.Archiv: Archiv- und Lagerflächen stehen für 5,00 €/m² zur Verfügung.Büro - 1. OG - ca. 810 m², teilbar ab ca. 320 m² Büro - 2. OG - ca. 320 m²


Ausstattung


Lage



Ähnliche Anzeigen
BENSHEIM! AUCH CA. 600 M² MÖGLICH! BÜRO UND LABOR! FLEXIBEL NUTZ- UND AUFTEILBAR!
ID-Nummer: 41725
BENSHEIM! AUCH CA. 600 M² MÖGLICH! BÜRO UND LABOR! FLEXIBEL NUTZ- UND AUFTEILBAR!
 
Bensheim
1,300.00 €
  • -
    Zimmer (gesamt)
  • 200,00 m2
    Ca. Wohnfläche:
Zwangsversteigerung Wohn- u. Geschäftsgebäude in 47624 Kevelaer, Plankmannsweg
ID-Nummer: 89302
Zwangsversteigerung Wohn- u. Geschäftsgebäude in 47624 Kevelaer, Plankmannsweg
 
Kevelaer
150,000.00 €
  • -
    Zimmer (gesamt)
  • 237,00 m2
    Ca. Wohnfläche:
Möblierte, freundliche 1,5-Zimmer-Wohnung  in schöner ruhiger Lage von Inzell
ID-Nummer: 35884
Möblierte, freundliche 1,5-Zimmer-Wohnung in schöner ruhiger Lage von Inzell
 
Inzell
400.00 €
  • 1
    Zimmer (gesamt)
  • 35,00 m2
    Ca. Wohnfläche:

"Immobilienangebote: Immobilien gewerblich und privat kostenlos inserieren Für Immobilienmakler: Nutzen Sie unsere Open-Immo-Schnittstelle"