Vorverkaufstart! In kürze Baubeginn - 2 Zimmer Neubau Wohnung- Neuburg Zentrum - Ein Objekt von SOWA Immobilien & Finanzen

Neuburg 306490 63,00 m2
Sonja Walter
Company Agent 08431-5871083
Details der Immobilie
  • ID-Nummer : 115444
  • Preis: 306,490.00 €
  • Ca. Wohnfläche: 63,00 m2
  • Zimmer (gesamt): 2
  • Energiepass
  • Art: Bedarfsausweis
  • Endenergiebedarf in kWh/(m²*a):
  • Baujahr: 2020
  • Käuferprovision: 0

Adresse
  • Straße:
  • Hausnummer:
  • Postleitzahl: 86633
  • Stadt: Neuburg

Objektbeschreibung

ENERGIEAUSWEIS

Der Energieausweis liegt seitens des Anbieters noch nicht vor.


Ausstattung

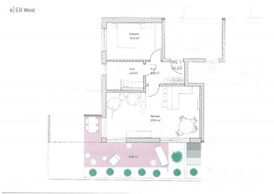
Die 2 Zimmerwohnung besticht durch eine klare, großzügige Aufteilung. So bietet bereits der Flur viele Möglichkeiten zur Möblierung, es können eine Garderobe, Pflanzen und weitere Schränke untergebracht werden. Das Tageslichtbadezimmer präsentiert sich mit viel Bewegungsfreiheit ohne überdimensioniert zu sein. Das von der West- und Nordseite belichtete Schlafzimmer kann mit einem großen Bett möbliert werden. Der Wohnbereich, an welchem die Terrasse anschließt, bietet Ihnen alle Möglichkeiten, so gibt es unzählige Küchenvarianten, es sind sämtliche Esstische vorstellbar und auch für den Wohnbereich sind Ihnen keine Grenzen gesetzt.

Die Terrasse der westlichen Erdgeschosswohnung ist als kleine Ruhe Oase zu sehen. So wird der Außenbereich der Wohnung 1 getrennt von den restlichen Bereichen, lediglich ein Tor zu Ihrem Terrassenstellplatz lässt Sie die Terrasse zur Außenwelt öffnen. Der darüber liegende Balkon dient weiterhin als Überdachung eines Teilbereichs der Terrasse.

Stellplatz und Carport kann gegen Aufpreis erworben werden

EnEV: Neubauobjekt befindet sich in der projektierungsphase, ein Energieausweis liegt noch nicht vor.

In der projektierungsphase können noch kleine Änderungswünsche berücksichtig werden.

In diesem Objekt befinden weitere Wohnungen, Sie haben Interresse kontaktieren Sie uns.

Alle Angaben ohne Gewähr.


Lage

Neuburg an der Donau (PLZ 86633)

Neuburg an der Donau erstreckt sich auf eine Fläche von 81 km² und gehört zum Landkreis Neuburg-Schrobenhausen und ist der Sitz der Kreisverwaltung.
Zu den angrenzenden Landkreisen gehören Ingolstadt, Pfaffenhofen, Aichach-Friedberg, Donau-Ries und Eichstädt.
Die aktuelle Einwohnerzahl liegt bei rund 30.000 Einwohnern.
Zu Neuburg an der Donau gehören folgende Orte/Ortsteile Altmannstetten, Auschlösschen, Bergen, Bittenbrunn, Bruck, Bürgerschwaige, Eulahof, Feldkirchen, Forsthof, Gietlhausen, Gnadenfeld (Kahlhof), Grünau, Hardt, Heinrichsheim, Herrenwörth, Hessellohe, Joshofen, Laisacker, Marienheim, Maxweiler, Ried, Rödenhof, Rohrenfeld, Rothheim, Sehensand, Zell und Ziegelau. (Alphabetisch sortiert)
Partnerstädte von Neuburg sind Sète und Jeseník. Städtefreundschaften bestehen zu Hamburg und Malcesine.
Bekannt ist Neuburg an der Donau weit über Bayern hinaus durch das legendäre ?Neuburger Donauschwimmen? welches das größte Winterschwimmen in Europa ist. Sowie das ?Neuburger Schlossfest? das Fest der Renaissance welches alle 2 Jahre stattfindet.
Das Gebiet um Neuburg gehört zum Urdonautal und wird oft von Touristen besucht welche mit dem Fahrrad entlang der Donau nach Passau, Wien und Budapest radeln.
Wirtschaftlich gehört Neuburg zur Boom Region 10.
Die größten Arbeitgeber der Stadt sind die Unternehmen Verallia Deutschland, Rockwool, Faurecia, Knauf, Leoni sowie die Hoffmann Unternehmensgruppe (Sonax und Hoffmann Mineral) in den Bereichen Glas- und Chemische Industrie. Ebenso wurde 2014 das AUDI driving experience center mit einer eignen Teststrecke eröffnet, in dem sich auch die Audi Motorsportabteilung befindet. Abgerundet wird der Arbeitsmarkt mit einem Funktionierenden Mittelstand. Viele Einwohner arbeiten in der nahgelegen Großstadt Ingolstadt mit dem größten Arbeitgeber der Audi AG.
Die Stadt verfügt über alle Schulen (Grundschule, Mittelschule, Realschule, Wirtschafsschule, Gymnasium, Berufsoberschule, Fachoberschule). Studieren ist z.B. in Ingolstadt, Eichstätt und München möglich, wobei die Planungen für einen eigenen Campus bereits laufen und in den nächsten Jahren realisiert werden soll.

Auch für die Freizeitaktivitäten bietet Neuburg einiges, ob verschiedene Fitnessstudios, Schwimmbad, Hallenbad, Wälder und Seen rund herum, Jazz, Kino, Gastronomie etc.

Verkehr: Im Stadtgebiet ist ein Stadtbus-Line vorhanden, die Städte Ingolstadt (15 Min), Augsburg (40 Min), München (60 Min), Nürnberg (70 Min) sind mit dem Auto gut zu erreichen. Des weiteren verfügt Neuburg über einen eigenen Bahnhof.



Ähnliche Anzeigen
KOMFORT-WOHNHAUS mit Einliegerwohnung in HUSUM/NORDSEE
ID-Nummer: 73901
KOMFORT-WOHNHAUS mit Einliegerwohnung in HUSUM/NORDSEE
 
Husum
350,000.00 €
  • 6
    Zimmer (gesamt)
  • 257,00 m2
    Ca. Wohnfläche:
SCHIFFERSTADT! MÖBLIERTES ZIMMER MIT BAD! ANGEBOT NUR FÜR WOCHENENDHEIMFAHRER!
ID-Nummer: 29893
SCHIFFERSTADT! MÖBLIERTES ZIMMER MIT BAD! ANGEBOT NUR FÜR WOCHENENDHEIMFAHRER!
 
Schifferstadt
250.00 €
  • 1
    Zimmer (gesamt)
  • 25,00 m2
    Ca. Wohnfläche:
Wohnen und Urlaub in einem
ID-Nummer: 27289
Wohnen und Urlaub in einem
 
Wesenberg
195,000.00 €
  • 6
    Zimmer (gesamt)
  • 180,00 m2
    Ca. Wohnfläche:

"Immobilienangebote: Immobilien gewerblich und privat kostenlos inserieren Für Immobilienmakler: Nutzen Sie unsere Open-Immo-Schnittstelle"