Balkon, Terrasse & Garagen + wunderschönes & massives Einfamilienhaus mit ELW

Römerstein 390000 142,00 m2
Elisabeth Holder
Company Agent 07122/8295394
Details der Immobilie
  • ID-Nummer : 114010
  • Preis: 390,000.00 €
  • Ca. Wohnfläche: 142,00 m2
  • Zimmer (gesamt): 5.5
  • Energiepass
  • Art: Bedarfsausweis
  • Endenergiebedarf in kWh/(m²*a):
  • Baujahr: 1996
  • Käuferprovision: 0

Adresse
  • Straße: Hinter-Höfen-Str.
  • Hausnummer: 7
  • Postleitzahl: 72587
  • Stadt: Römerstein

Objektbeschreibung

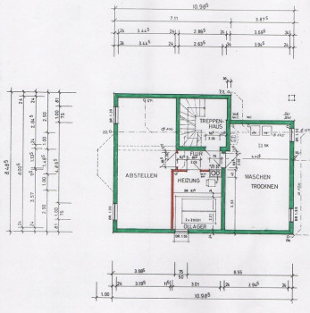
In unverbauter Ortsrandlage bietet diese in Massivbauweise erstellte Liegenschaft als Einfamilienhaus mit Einlieger-Wohnung im Dachgeschoss (DG) mit Balkon von der Terrasse vom DG aus herrliche Ausblicke ins Grüne. Das Objekt ist in einer gewachsenen Siedlungslage am geschickt Ortsrand gelegen. Viel Grün und ein attraktives Freitzeitangebot warten auf Sie! Die Immobilie ist voll unterkellert und verfügt über eine große Doppel-Garage neben dem Haus und über mehrere Kfz-Stellplätze im Hof. Die Hauptwohnung im Erdgeschoss (EG) hat ein funktionales Badezimmer mit Tageslicht mit einem separaten WC. Eine Küche mit Küchenmöbeln vom Schreiner mit einer anschließenden Speisekammer ist ebenfalls vorhanden. Das Wohnzimmer mit Zugang zur Terrasse verfügt über eine sonnige Essecke mit Erker. Ein weiteres Wohn-/Schlafzimmer ist im EG vorhanden. Alle Zimmer des EG können separat über den Flur erschlossen werden. Der Flur ist so konzipiert, dass sowohl der Keller, als auch das DG über eine kleine Diele separat erschlossen werden können. Im DG ist eine weitere 2-Zimmer-Wohnung mit Bad, Flur und Balkon vorhanden. Anschlüsse für eine Küchenzeile sind ebenfalls bereits verlegt. Diese Wohneinheit verfügt über eine schöne Aussicht. Alle Zimmer sind getrennt über den Flur erreichbar. Im Keller gibt es mit diversen Räumen ein weiteres, nützliches Platzangebot: Heizraum, Waschküche/-raum, Keller und ein riesiger Abstellraum/Hobbyraum. Der Garten ist sehr kompakt und pflegeleicht. Dennoch liegt das Objekt fast ganz im Grünen, da sich unbebaubare Grünflächen anschließen.


Ausstattung

Besondere Merkmale: - unverbaute Ortsrandlage! - hochwertige Einbauten vom Schreiner - Parkettböden - großer Hobby-/Hauswirtschaftsraum - zwei übergroße Garagen mit extra Stauraum im Dach - zwei separate Stellplätze - ELW im DG (wohnen, vermieten oder arbeiten!) - Terrasse & Balkon - Gartenhaus / Schuppen - ÖL-ZH mit PV (PV Nachrüstung mit 5 Kollektoren / Einbau Oktober 2008) - Zisterne (ca. 2,2 cbm)


Lage

Römerstein ist eine Gemeinde im Landkreis Reutlingen in Baden-Württemberg. Römerstein ist mit seiner gesamten Gemarkung Teil des Biosphärengebiets Schwäbische Alb. Die Gemeinde besteht aus Böhringen, Donnstetten und Zainingen. Zur Ortschaft Böhringen gehören das Dorf Böhringen, der Weiler Strohweiler und das Gehöft Aglishardt. Zur Ortschaft Donnstetten gehören das Dorf Donnstetten und das Haus Römersteinhäuser, ein 1912 errichteter Aussichtsturm auf dem Römerstein. Zur Ortschaft Zainingen gehört nur das gleichnamige Dorf. Folgende Städte und Gemeinden grenzen an die Gemeinde Römerstein: Lenningen (Landkreis Esslingen), Wiesensteig (Landkreis Göppingen), Westerheim, Laichingen (beide Alb-Donau-Kreis), Gutsbezirk Münsingen, Bad Urach und Grabenstetten (alle Landkreis Reutlingen). Römerstein liegt verkehrsgünstig an den Bundesstraßen 28 und 465 (Kirchheim unter Teck - Leutkirch im Allgäu), die das Gemeindegebiet durchqueren. Der öffentliche Nahverkehr wird durch den Verkehrsverbund Neckar-Alb-Donau (NALDO) gewährleistet. Die Gemeinde befindet sich in der Wabe 222. Mit der Hauptschule (mit Werkrealschule) Römerstein in Böhringen und den Grundschulen in Zainingen und Donnstetten gibt es in Römerstein drei Schulen. Die Werkrealschule Vordere Alb besteht aus dem Hauptsitz Römerstein und der Außenstelle in Hülben. Diese Schule wird ab Sj. 16/17 als Gemeinschaftsschule geführt. Für die jüngsten Einwohner gibt es einen gemeindlichen und zwei evangelische Kindergärten.



Ähnliche Anzeigen
FUNKTIONALE WERKSTATT - PRODUKTIONS - LAGERFLÄCHEN - provisionsfrei
ID-Nummer: 40399
FUNKTIONALE WERKSTATT - PRODUKTIONS - LAGERFLÄCHEN - provisionsfrei
 
Gräfelfing
2,088.00 €
  • -
    Zimmer (gesamt)
  • 655,00 m2
    Ca. Wohnfläche:
Zwangsversteigerung Doppelhaushälfte in 18059 Papendorf, Pölchower Straße
ID-Nummer: 28882
Zwangsversteigerung Doppelhaushälfte in 18059 Papendorf, Pölchower Straße
 
Papendorf
232,000.00 €
  • -
    Zimmer (gesamt)
  • 148,00 m2
    Ca. Wohnfläche:
VIEL PLATZ FÜR IHRE FAMILIE - UNMITTELBAR DER LINIE 18 IN HÜRTH FISCHENICH
ID-Nummer: 34878
VIEL PLATZ FÜR IHRE FAMILIE - UNMITTELBAR DER LINIE 18 IN HÜRTH FISCHENICH
 
Hürth
800.00 €
  • 4
    Zimmer (gesamt)
  • 140,00 m2
    Ca. Wohnfläche:

"Immobilienangebote: Immobilien gewerblich und privat kostenlos inserieren Für Immobilienmakler: Nutzen Sie unsere Open-Immo-Schnittstelle"