riesiges Haus - 690 qm Spielwiese - Keller - mit 70 qm Einlieger-Wohnung

Soest 299169 264,85 m2
Details der Immobilie
  • ID-Nummer : 106504
  • Preis: 299,169.00 €
  • Ca. Wohnfläche: 264,85 m2
  • Zimmer (gesamt): 10
  • Energiepass
  • Art: Bedarfsausweis
  • Endenergiebedarf in kWh/(m²*a): 49.8
  • Baujahr: 2015
  • Käuferprovision: 0

Adresse
  • Straße: Steinkuhle
  • Hausnummer: 0
  • Postleitzahl: 59494
  • Stadt: Soest

Objektbeschreibung

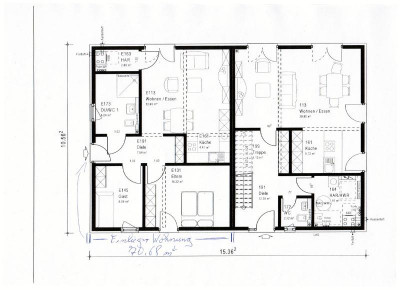
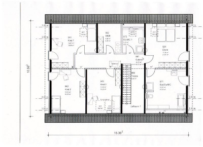
Ausbauhaus LifeStyle 35 - mit 70,68 qm Einlieger-Wohnung (eigener Eingang) - mit Keller
von außen fix und fertig und Weiß verputzt, inkl. Haustür, Dachrinne, Dacheindeckung fertig montiert
mit überschaubarer Eigenleistung preiswert in's eigene Haus
incl. Technik-Paket
Das Grundstück ist im Preis drin !


Im Kaufpreis enthalten:
* Keller
* Gas-Brennwertheizung
* Solarkollektoren für Brauchwassererwärmung
* Kontrollierte Be- und Entlüftungsanlage mit Wärme-Rückgewinnung
* Fußbodenheizung EG/OG
* Fenster mit 3-fach Verglasung
* Rollläden
* Sanitär Zu- und Ableitungen
* Elektropaket
* Dämmungs- und Beplankungspaket
* Architektenleistung
* Freiraum inklusive (2,75 Meter Raumhöhe)

Errichtung und Fertigstellung nach Absprache (Abbildung zeigt Sonderwünschen).
Dies ist eine Beispielanzeige mit einem möglichen Grundstück.
Ein Haus wird immer individuell mit den Bauherren geplant.

Optionen:
- Balkon / Balkone
- myGekko elektronische Haussteuerung vom Touch-Pad
- Alarmanlage (myGekko)
- Kamaraüberwachung (myGekko)
- elektrisch gesteuerte Rollläden (Option / myGekko)
- weitere Handwerkerleistungen (Montagen, Innenausbau, Bodenleger, Maler, Pflasterer, Gärtner)
- Bemusterung/Finishpaket
- Schornstein
- Kamin


Ausstattung

Wir bauen sensationelle Energiesparhäuser zu einem kaum vorstellbaren Preis, ermöglicht durch das flexible massa-System, das Ihr Bau-Budget spürbar reduziert!
Denn massa haus ist Marktführer in Ausbauhäusern!
Bauen Sie mit Massa-Haus und Sie gehören zu den über 2.700 Baufamilien die sich Jährlich für den Markführer entscheiden.
Faire Preise für ein energieeffizienteres Haus und ein Partner auf den Sie bauen können, sind Gründe die einfach für uns sprechen.
Wir beraten Sie - und planen gerne gemeinsam mit Ihnen Ihr Traumhaus!

Rufen Sie jetzt an und überzeugen Sie sich selbst!

Karl-Heinz Böcker
mobil: 0170 27 21 535


Lage

Das hier angebotene Grundstück wird durch einen unserer vielen Grundstückspartner separat vermarktet.
Der Grundstückpreis ist im angegebenen Kaufpreis enthalten.
Nicht Ihre favorisierte Lage?
Mit unserem KOSTENLOSEN Grundstücksservice für unsere Baupartner finden wir gemeinsam auch Ihr Traumgrundstück.



Ähnliche Anzeigen
H D I C - provisionsfrei - BÜROS MIT PFIFF  UND  DACHTERRASSEN IM MÜNCHNER WESTEN
ID-Nummer: 40282
H D I C - provisionsfrei - BÜROS MIT PFIFF UND DACHTERRASSEN IM MÜNCHNER WESTEN
 
München
4,160.00 €
  • -
    Zimmer (gesamt)
  • 4,264,00 m2
    Ca. Wohnfläche:
Schöner Bungalow mit Blick ins Wispertal!
ID-Nummer: 38968
Schöner Bungalow mit Blick ins Wispertal!
 
Lorch
126,000.00 €
  • 4
    Zimmer (gesamt)
  • 97,00 m2
    Ca. Wohnfläche:
Zwangsversteigerung Erdgeschosswohnung in 36039 Fulda, Leipziger Straße
ID-Nummer: 28873
Zwangsversteigerung Erdgeschosswohnung in 36039 Fulda, Leipziger Straße
 
Fulda
55,000.00 €
  • 3
    Zimmer (gesamt)
  • 50,00 m2
    Ca. Wohnfläche:

"Immobilienangebote: Immobilien gewerblich und privat kostenlos inserieren Für Immobilienmakler: Nutzen Sie unsere Open-Immo-Schnittstelle"